Air of Authority - A History of RAF Organisation


Home Page

Main Menu

Quick Menu

Members' Area

What New?

About this site

Reunions

Help Needed?

Glossary

Bibliography

Sign Guest Book

View Guest Book

Link to Amazon

Online Store

Contact Me


Plant Equipment - AP3036, Part 6 (1st Ed) & Part 7 (2nd Ed) - Macadam Equipment


(1st Ed) indicates that the Part/Section was in the original 1st Edition of AP3036.  (2nd Ed) indicates that the Part/Section was in the original 2nd Edition of AP3036, whilst the addition of AL? indicates which Amendment List, introduced this Part/Section following the original release of AP3036 (2nd Edition)

 

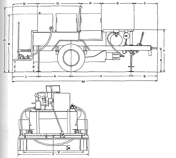
Millars' Bitumen/Tar Mixing Unit, Model EE

Millars' Bitumen/Tar Mixing Unit, Model EE

Millars' Bitumen/Tar Mixing Unit, Model EE - static mode

Description
  1. Millars' bitumen/tar mixer is a unit which is readily adapted for static or semi-static operation on site arid it can be moved from one site to another on a transporter or by towing it behind a vehicle.

  2. The purpose of the mixer is to coat stone chippings or other aggregate with hot or cold bitumen or tar and to discharge the mixture into transporting vehicles; it can also be used for wet or desert sand mixes.

  3. In the semi-static role, the mixer is operated on its four wheels and the mixture can be discharged into comparatively small vehicles, such as wheel-barrows and hand tip-carts.  In the static role, the mixer is raised and supported by four support columns which incorporate the winch gears for lifting the unit.  When the mixer is used in this way space is provided for lorries to be used for receiving the mixture the road wheels and drawbar being removed

  4. The power to operate the mixing equipment is provided by either a Lister CE 16 four stroke diesel engine or a Petter B9, four stroke diesel engine.

MT required for transportation -

  • Hands or Templewood trailer (for transportation)

  • AEC, Matador, 4x4, Tractor (for Towing)

This entry as been amended to AL62.

Engines

Lister, Type CE 16, 2 cylinder, water cooled, Diesel:  Capacity - 139.6 cu in:  Power - 16 BHP at 1,200 rpm or

Petter, Type B2, 2 cylinder, water cooled, Diesel:  Capacity - 127.6 cu in:  Power - 17 BHP at 1,200 rpm

Operation

The output of mixed material per operation is 10 cu. ft.  The number of operations per hour varies considerably, according to weather conditions and temperature, but under normal conditions from 10 to 15 mixes per hour should be obtained, thus giving an output per 8 hour day of from 30 to 45 cu. yd. of mixed material.

Great care must be taken to level up the machine both ways before commencing work; failure to do this may result in a strained frame and undue wear of the bearings. etc.

For hot mixes, this unit is used in conjunction with the portable horizontal boiler (BPB Bitumen/Tar Sprayer 320 gal) shown below.  For cold mixes, the bitumen is pumped direct from the drum,

Data

Weights

  • Lifting frame - 1 ton 18 cwt

  • Semi-static machine (solid wheels) - 5 tons 17 cwt (Lister engine), 5 tons 13 cwt (Petter engine)

  • Semi-static machine (pneumatic tyres wheels) - 5 tons 13 cwt (Lister engine), 5 tons 10 cwt (Petter engine)

Overall dimensions: -   

In semi-static role

  • Length (loader skip lowered) - 20 ft. 4 in.

  • Length (loader skip raised) - 17 ft. 1 in.

  • Height - 12 ft. 9 in.

  • Width - 11 ft. 8 in. or 9 ft 4 in (depending on bitumen pump installed)

  • Wheelbase - 10 ft 5 in

  • Track - 8 ft 3 in

In static role

  • Length (loader skip lowered) - 21 ft. 5 in.

  • Length (loader skip raised) - 18 ft. 8 in.

  • Height - 17 ft. 0 in.

  • Width - 15 it. 9 in (excluding lifting handles)

Fuel consumption -7 pints per hour.

 

Barber-Greene Mcadam Mixer, Model 841

Barber-Greene Mcadam Mixer, Model 841

Description
  1. This machine is used for mixing bituminous material in conjunction with the Barber Greene Model 831 Dryer and 831E Elevator or for mixing clay soil aggregate in conjunction with a Model 821 Soil Unit and 831  Elevator. 

  2. The machine - and the power unit, which is a 36 hp LeRoi gasoline engine - are mounted on a chassis provided with an axle and twin pneumatic-tyred wheels at one end and two jacks at the other.  The jacks support one end of the chassis during the operation of the machine, and also enable it to be raised or lowered on to a tractor or dolly for towing purposes.  The jacks swing up under the machine when in the travelling position.

MT required for transportation -

  • Dolly and heavy tractor

This entry is based on AL1.

Engine

LeRoi, Model D2OIP, 4 cylinder, water cooled, petrol:  Capacity - 201 cu in:  Power - 36 BHP at 1,400 rpm (governed)

Operating Data Approximately 25 tons per hour in bituminous mixing

Approximately 40 tons per hour in stabilized mixing

Data
  • Weight on trailing axle - 10,800 lb

  • Load on dolly- 4,000 lb.

Overall dimensions: -   

  • Length - 21 ft. 3 in.

  • Width - 8 ft. 0 in.

  • Height - 10 ft. 6 in.

Wheels - Dual wheels with 7.50 x 20 (8-ply) pneumatic tyres

 

Barber-Greene Mcadam Mixer, Model 840

Barber-Greene Mcadam Mixer, Model 840

Description
  1. This machine is used for mixing bituminous material in conjunction with a Barber-Greene dryer, Model 830.  The machine is mounted on a chassis which is provided with an axle and single pneumatic-tyred wheels at one end, and a draw-bar at the other. Folding jacklegs support the mixer in the operating position.

  2. The power unit is a Le Roi gasoline engine.

MT required for transportation -

  • not stated

This item of equipment appears to have been added to the 2nd Edition by the issue of AL24.

Engine

Engine - LeRoi, Model D2OIP3, 4 cylinder, water cooled, petrol:  Capacity - 201 cu in:  Power - 46 BHP

Machine Specification Running gear - Single Wheels, fitted with 10.00 x 20 in., 12 ply, heavy duty, pneumatic tyres.

Aggregate hopper and calibrated gate - Capacity one cu. yd.  A 'tell-tale" indicates the level of aggregate.  A 10 in. wide gate, with 10 in. maximum vertical opening adjustable by screw and ratchet, is scaled with 1/16 in graduations.

Apron feeder - 12 in. wide overlapping beaded pans, with revolution counter on foot shaft, forms moving floor of hopper to provide continuous aggregate flow under calibrated gate.  Drive is interlocked with metering pump to maintain constant ratio of aggregate and bitumen.

Metering pump - Kinney l¼ in. positive displacement pump, steam-jacketed, with chain sprockets for selection of 18 pump speeds, to deliver 2.7 to 11.8 gallons per minute.

Spray chamber - Steam-jacketed spray-bar with nozzle located at discharge end of apron feeder.  Pre-coats aggregate.

Pugmill - 4 ft. long, 2 ft. 8 in. wide, 1 ft. 9 in. deep, steam-jacketed. twin-shaft pugmill with reversible paddles to control mixing time. Paddle tips are of heat-treated alloy steel, reversible and replaceable.

Pugmill discharge gate - For controlling time of mixing pugmill and stopping discharge completely when changing trucks.

Bitumen tank - 350 gallon capacity insulated.  Three full length heating flues designed for torch or steam heating.  Steam-jacketed piping to spray-bar.  Bitumen tank thermometer 50 deg. to 400 deg. F.

Tank heater - Torch type distillate burner; 20 gallon; manual pressure supply tank and exhaust stack.

Machine Accessories

Truck loading conveyor - 14 ft. x 1 ft. 6 in. belt conveyor driven from pugmill shaft, with hot material belt, scraper, and A-frame support.

Fines feeder - 300 lb. capacity hopper, drag chain feeder, calibrated gate, 2 to 1.1 cu. ft. per mm. feeding capacity.  Mounted over pugmill, chain-driven from apron feeder head shaft.  Handles lime dust, cement, powdered asphalt, etc.

Transfer pump - 2½ in. Viking rotary steam-jacketed pump unit, skid mounted, with 13 hp, 4 cyl, VE-4 Wisconsin gasoline engine with clutch, or 5 hp 3-60-220V or 440V electric motor, 1800 rpm, ball bearing, open type, full voltage across the-line starter and disconnect switch.  Speed reducer runs in oil.  Capacity 80 gallons per min.  Special clearance to handle all liquid bituminous products, including emulsions.

Steam heating - Necessary piping and fittings on mixer, including steam trap, replaces tank heater when steam is used.

Operating Data Approximately 10 - 25 tons per hour depending on the type of mix

Discharge height - 3 ft 0 in

Data
  • Weight - 10,600 lb

Overall dimensions: -   

  • Length - 14 ft. 4 in.

  • Width - 7 ft. 8 in.

  • Height - 10 ft. 0 in.

 

Millars' Asphalt Plant

Description
  1. The Millars' asphalt and macadam plant described here is for the quantity production in batched loads of hot and cold asphalts and bituminous macadams.  The machine is not suitable for intermittent operation and should only be used when comparatively large quantities of prepared material are required.

  2. The plant consists basically of a continuously rotating heating and drying drum, screening equipment, weigh batching equipment, and a paddle mixing unit, together with aggregate and filler hoppers provided with automatic feeds to the main body of the plant.

  3. Hot bituminous material is supplied to the plant from an adjacent bitumen kettle, or a distributor fitted with heating equipment.  The source of the bitumen supply is not an integral part of the plant.

  4. The current models of the plant, described here, are powered by a separate Ruston, Type 4 VSH, liquid-cooled, diesel engine mounted on a steel-wheeled trolley and connected to the plant by a triplex-roller chain; the power unit is a component of the plant and should not be used to drive other equipment.  Earlier models, still in use, are powered by a Ruston, Type 4 VSO engine or by a Lister, Type CE16 engine.

  5. In its operational condition, the main body of the plant is supported on packing placed under its axles so that delivery from the discharge door of the mixing unit can be made into a vehicle positioned under the plant.

  6. It is essential that adequate arrangements are made for the supply and the loading of raw materials into the aggregate and filler hoppers and for the removal of the hatched, finished, material. In favourable conditions, the discharge rate may be a 900 lb. batch every two minutes.

  7. The mainframe of the plant is supported on two axles fitted with detachable stub axles with pneumatic-tyred wheel equipment, single at the front, double at the rear. All wheels are fitted with Girling type brakes operated by a Clayton Dewandre two line air pressure system controlled by the towing vehicle.  The rear wheel brakes can be applied mechanically by a hand wheel for parking purposes.  In the erected, operational state, the stub axles and wheel equipment are removed from the plant.

  8. Before the plant can be towed, the stub axles and wheel equipment must be put back and the filler and aggregate elevators removed, together with the dust extractor, the screening unit, and those components that extend higher than the upper platform of the plant.  The removed components, together with the power unit and the aggregate and the filler hoppers, are transported in the two vehicles which accompany the plant when on tow; one vehicle towing the plant, the other carrying the loose components which owing to their bulk cannot all be carried in the towing vehicle.  It is essential that the towing vehicle be equipped with a two line air pressure braking system for the operation of the plant brakes.

Stores Ref -

  • 89D/104 (with Ruston, Type 4VSO engine)

  • 89D/105 (with Ruston, Type 4VSH engine)

  • 89D/106 (with Lister, Type CE16 engine)

MT required for transportation -

  • Towing - Leyland, 10 ton, 6 x 4, Tipper or similar

This item of equipment appears to have been added to the 2nd Edition by the issue of AL83.

Engines

Ruston, Type 4VSH, 4 cylinder, water cooled, Diesel:  Power - 30 BHP at 1,000 rpm (governed)

Operating Data

Capacities

Aggregate feed hopper - 4.0 cu. yd

Filler feed hopper - 2.0 cu. yd

Aggregate storage hoppers on plant (total) - 3.0 tons

Filler storage hopper on plant - 350 lb.

Aggregate batch hopper - 9.0 Cu. ft

Filler batch hopper - 2.5 cu. ft.

Bitumen batch hopper - 12.5 gall.

Tankage

  • Engine fuel - 8 gall

  • Burner fuel - 100 gall.

Output

High temperature - 10 tons per hour, with aggregate initial moisture content of 6 per cent and terminal temperature of 350 to 450 deg. F

Low temperature - 10 tons per hour, with aggregate initial moisture content of 4 per cent and terminal temperature of 100 to 150 deg. F

Batch weight - A convenient batch weight for bituminous material is about 900 lb.

Dimensions - See fig. 2

Weight - In operational condition with all hoppers and tanks full, approx. 40 tons

Data

Fig 5

Main body of plant, partially dismantled ready for towing

Dimensions - See Figs 4 & 5

Weight - 12 tons

Items to be carried in accompanying vehicles when plant is on tow - See Table below

   Weight (lb) Length Width Height
Aggregate feed hopper 3,136 9 ft 6 in 6 ft 6 in 6 ft 4 n
Power unit 4,284 7 ft 0 in 5 ft 3 in 6 ft 5 in
Filler feed hopper and elevator 3,920 6 ft 0 in 5 ft 0 in 4 ft 0 in
34 ft 0in 4 ft 4 in 2 ft 3 in
Screening unit, exhaust fan, hot elevator head, miscellaneous ducting and parts 8,960 14 ft 0 in 5 ft 3 in 6 ft 0 in
12 ft 0 in 6 ft 0 in 6 ft 0 in

 

 

Bitumen/Tar Sprayers - General

  1. Before the commencement of a spraying operation, the bitumen or tar should be sufficiently heated to avoid choking the spraying apparatus; bitumen should be heated to about 260 deg. F. and tar to about 200 deg. F.  The spraying material should be maintained at the requisite temperature by adjusting the boiler burner(s) or fire accordingly. 

  2. The quantity of spraying material used is largely dependent on the type of road surface being sprayed; as a general indication, one gallon will cover 5 to 7 square yards of a road already surfaced, and about 4 square yards of a road not previously surfaced.

  3. When spraying operations have to be suspended for some time, the sprayer hose and pipe-work should be thoroughly drained or scavenged to obviate subsequent clogging.

  4. Spraying plant should always be located on a comparatively level site Wherever the site a check should be made to ensure that a foam fire extinguisher is readily available.  When a burner fuel tank is being filled, care should be exercised not to overfill the tank; the tank should never be filled while the burners are alight.

 

Braham, Patterson and Benham Bitumen/Tar Sprayer, 320 gal.

Braham, Patterson and Benham Bitumen/Tar Sprayer, 320 gal.         Braham, Patterson and Benham Bitumen/Tar Sprayer, 320 gal.

Description
  1. The sprayer illustrated above is used for bitumen or tar spraying and includes a boiler mounted on a 4 wheel chassis.  The front part of the chassis frame is mounted on a steering undercarriage fitted with a triangular draw-bar.  The wheels are solid and made of steel.

  2. A single spray is connected by a hose to a hand-operated reciprocating-type pump located inside the boiler pan; two plug cocks are provided to enable the pipework to be warmed or scavenged.  A draw off cock is fitted at the front of the boiler so that hot bitumen or tar may be withdrawn for bitumen/tar mixing units.

  3. The boiler furnace is lined with firebrick and is heated by a fuel burner. The burner is of the self-generating atomising type in which the fuel is vaporised by air when starting and by steam when running normally; the air is supplied by a foot-operated pump, and the steam is generated in the burner.  A fuel tank and a water tank are provided for the burner; a thermometer is fitted on the boiler.

This entry is based on AL1.

Operation The spray jet will pass approximately 2½ gallons per minute, under normal conditions.  The area covered is largely dependent upon the operators and the surface.  For hungry surfaces 4 square yards per gallon are covered, but ordinarily on a previously surfaced area the figure is from 5-7 square yards per gallon.

MT required for transportation -

  • Hands or Templewood trailer (for transportation)

  • AEC, Matador, 4x4, Tractor (for Towing)

Data

Boiler Capacity - 320 gallons

Weight - 3 tons 4 cwt.

Overall dimensions: -

  • Length - 13 ft. 3 in.

  • Width - 6 ft. 4 in.

  • Height (excluding chimney and davit) - 7 ft. 3 in.

  • Wheelbase - 6 ft 10 in

  • Track - 5 ft 1 in

  • Ground Clearance - 10½ in

 

Bristowes Bitumen/Tar Sprayer, 250 gal.

Bristowes Bitumen/Tar Sprayer, 250 gal. from right   Bristowes Bitumen/Tar Sprayer, 250 gal. from front

Description
  1. The sprayer includes a bitumen/tar boiler which is mounted on a 4-wheeled chassis.  The front part of the chassis frame is mounted on a steering undercarriage fitted with a triangular draw-bar. The wheels are of steel. A lever-operated parking brake operates on the left rear wheel.

  2. The boiler is heated by two fuel burners which are fed from a fuel tank mounted on the rear end of the boiler. Compressed air is supplied to the burners by a small rotary air compressor which is driven by a water-cooled gasoline engine; the compressor and the engine are mounted on a platform at the front end of the chassis.

  3. The bitumen or tar is delivered to two spray jets by a rotary gear pump mounted in the upper part of the boiler. The spray jets are connected by hoses to a delivery pipe fitting on each side of the boiler. The pump is fitted with a hand-operated clutch and is driven by a roller chain from the drive shaft of the compressor engine.

  4. A detachable davit, with a chain hoist and barrel hooks, is fitted on the rear end of the boiler.  A metal-encased thermometer is provided for measuring the temperature of the bitumen or tar in the boiler. The boiler chimney is detachable.

MT required for transportation -

  • Hands or Templewood trailer (for transportation)

  • AEC, Matador, 4x4, Tractor (for Towing)

This entry as been amended up to AL3, 2nd Edition.

Engine/Compressor

 

Engine: - Lister 26D2H, single cylinder, water cooled, petrol:  Capacity - 21.2 cu in (0.347 litres):  BHP - 2 at 1,000 rpm

Compressor: - Hammond RAL 3, Rotary type, air cooled, driven by belt drive from engine.

Operating Data

Relief valve setting - 40 lb/sq in

Spray jets (each) -  3½ gallons each per minute

Spraying pressure - 35 lb per sq in

Data

Weight - 2 ton 11¼ cwt.

Overall dimensions: -

  • Length - 10 ft. 6 in. (excluding drawbar)

  • Width - 5 ft. 7 in.

  • Height - 6 ft. 3 in. (excluding chimney and davit)

  • Wheelbase - 6 ft 3½ in

  • Track - 4 ft 11 in

  • Ground Clearance - 11 in

Fuel consumption: -

  • Oil burning unit  2 gallons per hour  - Tank capacity 17 gallons.

  • Lister petrol engine, 1 pint per hour - Tank capacity 1 gallon.

 

Braham, Patterson and Benham Bitumen/Tar Boiler, 1,000 gal.

 Braham, Patterson and Benham Bitumen/Tar Boiler, 1,000 gal.

Description
  1. This boiler is generally used for supplying hot bitumen or tar to a mobile Pugmill mixing plant.  The draw-off cock is located at the front end of the boiler; no spraying apparatus is fitted.
  2. The furnace is lined with firebrick and is heated by two fuel burners which are fed from a fuel tank mounted on the boiler. Compressed air is supplied to the burners by a rotary air compressor which is driven by an air-cooled gasoline engine; the compressor and the engine are fitted on a small platform.
  3. The boiler is mounted on four steel wheels.  A triangular draw-bar is fitted to the axle of the steering wheels, and two hand-operated brake blocks are fitted to the rear wheels.

MT required for transportation -

  • Hands or Templewood trailer (for transportation)

  • AEC, Matador, 4x4, Tractor (for Towing)

This entry is based on AL1.

Engine/Compressor Boiler - 1,000 gal capacity

Engine - Villiers Mk 10, single cylinder, air cooled, petrol:  Capacity - 98 cc (6 cu in), Rating - 1 BHP at 2,000 rpm

Compressor - Hammond RAL 5, Rotary, air-cooled

Data

Weight - not stated

Overall dimensions: -

  • Length - 12 ft. 0 in.

  • Width - 6 ft. 10 in.

  • Height (excluding chimney and davit) - 8 ft. 4 in.

  • Wheelbase - 5 ft 2 in

  • Track - front - 4 ft 0 in, rear - 6 ft 0 in

  • Ground Clearance - 7 in

 

Phoenix Bitumen/Tar Sprayer, 320 gal.

        
Description
  1. The Phoenix 320 gall bitumen and tar spraying machine is oil-fired and is fitted with a hand operated  reciprocating type pump to which two scythe pipes with spraying nozzles can be connected by hose.  The running gear comprises four steel wheels the front axle being carried in a Steering bogie and fitted with a drawbar for mechanical haulage.

  2. The burner is of the atomising, self-generative type, normal fuel being diesel fuel or kerosene.  The fuel is atomised by a jet of steam generated in the burner, the water tank for this purpose being mounted on the machine and put under pressure by a foot pump.  At starting, when steam is not available, the fuel is atomised by air taken from the air space in the water tank.

  3. The pump is externally mounted, and is fed through a float-controlled suction. The flow to the pump is controlled by a lever fitted on top of the boiler, and the cock also allows for hot air scavenging of the pipework.  A crane post and chain blocks, and barrel rollers, are included in the equipment.

MT required for transportation -

  • Hands or Templewood trailer (for transportation)

  • AEC, Matador, 4x4, Tractor (for Towing)

This item of equipment appears to have been added to the 2nd Edition by the issue of AL2.

Data

Boiler Capacity - 320 gallons

Wheels:  front - Two 20 in x 4 in, rear - Two 32 in x 4 in

Spray jet - 2½ gallons/min

Weight - 2 tons (approx)

Overall dimensions: -

  • Length - 8 ft. 9 in. (excluding drawbar)

  • Width - 4 ft. 10 in.

  • Height (including chimney and crane post) - 11 ft. 3 in.

  • Wheelbase - 3 ft 6½ in

  • Track - front: 3 ft 3 in, rear: 4 ft 3 in

  • Ground Clearance - 8 in

 

Phoenix Bitumen/Tar Boiler, 50 gal.

         Phoenix Bitumen/Tar Boiler, 50 gal.
Description
  1. This coal-fired, vertical pattern boiler is used chiefly for footpaths, patching and small jobs generally.  The casing containing the pin and firebox is mounted on three steel wheels and the front fork Is fitted with a drag handle.  A bib cock and detachable cover are fitted.

MT required for transportation -

  • Hands or Templewood trailer (for transportation)

This piece of equipment appears to have beeen added to the 2nd Edition by the issue of AL2.

Data

Boiler Capacity - 50 gallons

Wheels:  front - One 9 in diameter x 2 in, rear - Two 15 in diameter x 2¼ in

Weight - 5 cwt

Overall dimensions: -

  • Length - 3 ft. 9 in. (excluding drag handle)

  • Width - 3 ft. 10 in.

  • Height (including chimney) - 6 ft. 5 in

  • Outside diameter of casing - 3 ft 0 in

  • Ground Clearance - 7 in

 

Etnyre bitumen/water pressure sprayer, Type MX-D5

         Etnyre bitumen/water pressure sprayer, Type MX-D5
Description
  1. The Etnyre bitumen/water pressure sprayer, Type MX-D5 has a tank capacity of 1,250 gall. and is mounted on a Kingham 4-wheel trailer.

  2. The pump and the blower are driven by a Le Roi gasoline engine, Type D140P7.

  3. Two diesel oil-fired burners, fitted in the tank, are provided to heat the bitumen which is sprayed through a spray-bar mounted at the rear of the trailer; the spray-bar is sectional in construction, and its length can be adjusted by varying the number of sections.

MT required for transportation -

  • not staed

This item of equipment appears to have been added to the 2nd Edition by the issue of AL25.

Engine

Sprayer - Le Roi, D140P7, 4 cylinder, water-cooled, petrol:  Capacity - 139 cu in:   BHP - 26 at 1,500 rpm

Operating Data

Spraying width - Adjustable in 1 ft and 2 ft stages from approximately 7 ft to 26 ft.

Operating angle - Approximately 22o to the  centre line of the spray-bar.

Height of nozzles - For 'Triple Lap', approximately 10 in above the road surface.

Pump speed - Recommended minimum 10 gpm

Road speed - 3-5 mph

Pump speed (filling) - Approximately 150 gpm

Capacity of tank - 1,250 gallons

Technical Data

Weight - 10,700 lb

Overall dimensions (in working order): -

  • Length - 17 ft. 2 in.

  • Width - 7 ft. 9 in. (spray-bar stowed), 26 ft 1½ in (spray-bar down)

  • Height - 8 ft. 9 in.

  • Ground Clearance - 12 in

 

Etnyre bitumen/water pressure sprayer, Type MX-D6

         Etnyre bitumen/water pressure sprayer, Type MX-D6
Description
  1. The Etnyre bitumen/water pressure sprayer, Type MX-D6 has a tank capacity of 850 galls, and is mounted on a Diamond T 6 x 6 lorry, Model 968/A; a 6¼ ton winch, driven through a Power take-off, is provided on the front of the lorry chassis. The lorry is powered by a Hercules gasoline engine, Type RXC.

  2. The pump and the blower are driven by a Le Roi gasoline engine, Type D140P7.

  3. Two diesel oil-fired burners, fitted in the tank, are provided to heat the bitumen which is sprayed through a spray-bar mounted at the rear of the vehicle; the two outer sections of the spray-bar, the lengths of which are adjustable, are attached by ball-joints, and can be stowed vertically when not in use.

This item of equipment appears to have been added to the 2nd Edition by the issue of AL25.

Engines

Sprayer - Le Roi, D140P7, 4 cylinder, water-cooled, petrol:  Capacity - 139 cu in:   BHP - 26 at 1,500 rpm

Chassis - Hercules, RXC, 6 cylinder, waer-cooled, petrol:  Capacity - 529 cu in:  BHP - 131.5 at 2,300 rpm

Operating Data

Spraying width - Adjustable in 1 ft and 2 ft stages from approximately 7 ft to 26 ft.

Operating angle - Approximately 22o to the  centre line of the spray-bar.

Height of nozzles - For 'Triple Lap', approximately 10 in above the road surface.

Pump speed - Recommended minimum 10 gpm

Road speed - 3-5 mph

Pump speed (filling) - Approximately 150 gpm

Capacity of tank - 850 gallons

Winch - Load 15,000 lb, length of cable 300 ft

Winding speeds - At engine speed of 1,000 rpm, high range 55 ft/min and low range 30 ft/min.

Technical Data

Weight -

  • Gross - 22,300 lb

  • On each rear lift eye - 8,800 lb

  • On each front lift eye - 2,350 lb

Overall dimensions (in working order): -

  • Length - 27 ft. 0 in.

  • Width - 8 ft. 0 in. (spray-bar stowed), 26 ft 1½ in (spray-bar down)

  • Height - 9 ft. 0 in.

  • Wheelbase - 17 ft 2 in (to centre of tandem axles)

  • Track - 6 ft 2 in

  • Ground Clearance - 11 in

  • Turning radius - 36 ft 5 in (right), 35 ft (left)

 

Phoenix Bitumen/Tar Boiler, 1,000 gal. (pneumatic-tyred)

         Phoenix Bitumen/Tar Boiler, 1,000 gal. (pneumatic-tyred)
Description
  1. The Phoenix 1,000 gallon bitumen /tar boiler fitted with Rutherford oil burner, Type Q is mounted as a four-wheeled unit on pneumatic tyres, with fixed rear axle and turntable-type front axle.  It is designed for towing behind any suitable form of Service tractor or MT vehicle.

  2. It is intended for use, in conjunction with other equipment, in the surfacing or re-surfacing of aerodrome runways, perimeter tracks approaches, roadways, etc, and, by reason of its tyres and suspension, is capable of a high degree of mobility when unladen.

  3. The tyres are not designed to carry the vehicle in a laden condition for more than a short distance; when the vehicle is laden they are merely for use in moving the vehicle at its working location.

  4. Girling brakes, fitted to the rear hubs only, are operated by hand lever and cable from the front of the boiler.  They can also be applied from the tractor or other towing vehicle by means of the cable link supplied.

  5. Parking jacks are provided for the purpose of relieving the load on the tyres of the rear wheels when the machine is fully laden and likely to be occupying a fixed working location for an appreciable time.

  6. To facilitate the refilling of the boiler with material when this is supplied in barrels, a detachable, swivelling jib crane is mounted at the front left-hand side of the vehicle.

This item of equipment appears to have been added to the 2nd Edition by the issue of AL49.

Machine Specification

Capacity - 1,000 gallons

Wheels

  • Front - Two, 6 stud, roller bearing type, to India Code No. 0134

  • Rear - Two, 8 stud, mastic type, to Phoenix Drawings 129 and 129/1

Tyres - Pneumatic: Front - 900 x 16, high-pressure, GS type, Rear - 900 x 20, high-pressure, GS type

Brakes - On rear wheels only; Girling type for 16 in. dia. x 2½ in. wide drum; operated from front of vehicle by rod and cable couplings.

Suspension

  • Front - single-pin swivelling turntable, mounted between front axle and bracket on boiler casing

  • Rear-12-leaf semi-elliptic springs, anchored by shackles to hull angle brackets

Steering - By tow-bar operating on turntable with king-pin fixing

Burner - Rutherford oil burner, Type Q

Burner pressure - 30 lb/sq in

Technical Data

Weights

  • With all tanks empty

    • Front axle- 4,144 lb

    • Rear axle - 6,272 lb

    • Total - 10,416 lb

  • With all tanks fully

    • Front axle- 8,176 lb

    • Rear axle - 12,656 lb

    • Total - 20,832 lb

Overall dimensions (in working order): -

  • Length (tow-bar extended) - 17 ft. 7 in.

  • Length (tow-bar removed) - 14 ft. 5 in.

  • Width - 7 ft. 6 in

  • Height (Stack extended) - 16 ft. 9 in.

  • Height (Stack stowed) - 9 ft. 9 in.

  • Wheelbase - 7 ft 0 in

  • Track - 4 ft 6 in (front), 6 ft 2 in (rear)

  • Ground Clearance - 10 in

  • Height of tow-bar (parallel to ground) - 1 ft 5 in

 

Phoenix Bitumen/Tar Sprayer, 1,000 gal.

 Phoenix Bitumen/Tar Sprayer, 1,000 gal.       
Description
  1. The Phoenix 1,000 gall. bitumen/tar sprayer incorporates a system for spraying hot bitumen or tar from a transversely-mounted gallery pipe at the rear of the vehicle and from flexible hoses attachable to two connectors fed by a cock to the rear of the supply pump.  This pump is of the spur gear type, chain-driven through a sliding dog clutch by a Lister, Type A2, single cylinder gasoline engine.  The hot bitumen or tar is drawn off by this pump through the main rotary control valve, which is operated by the cranked handle to the right and rear of the vehicle.

  2. The rotary blower mounted immediately behind the boiler on the left side is driven by the Lister engine through a single V-belt, and supplies air to pressurise the fuel-oil feed to two Urquhart straight jet type burners mounted in front of the boiler furnace.  The furnace is lined with fire brick.

  3. Fitted on the front face of the boiler are a smoke stack and a swivel post. The latter is for suspension of block and tackle used for raising bitumen or tar barrels.  Rollers are provided on top of the boiler for the support of the barrels when the bitumen or tar in the boiler is being replenished.  The boiler may be drained through a rotary cock mounted on the front face.  Within the boiler are basket strainers and an assembly comprising a suction strainer, float and pipe, and a thermometer which projects through the boiler top.

  4. The whole is mounted on a chassis frame with leaf suspension at the rear only. The chassis is mounted on four iron wheels fitted with turn-down greasers; the front pair of wheels are steerable by a triangular towing arm.  No brakes are fitted.

MT required for transportation -

  • Hands or Templewood trailer (for transportation)

  • AEC Matador 4x4 Tractor. (for towing)

This item of equipment appears to have been added to the 2nd Edition by the issue of AL51.

Engine

Lister, A2, single-cylinder, water cooled, petrol:  BHP - 3 at 600 rpm

Machine Specification

Capacity - 1,000 gallons

Suspension - Leaf spring at rear

Wheels - Four iron with turn-down greasers

Burner - Urquhart, No 4 C, straight jet.

Fuel - Light diesel or any distillate oil.

Technical Data

Weight - 5 tons (approx)

Overall dimensions: -

  • Length (excluding tow-bar) - 14 ft. 0 in. (+ 1ft 3 in when chimney stored)

  • Width - 7 ft. 3 in

  • Height (Chimney and davit stored) - 9 ft. 3 in. (to top of tank)

  • Wheelbase - 8 ft 0 in

  • Track -  6 ft 7 in (rear wheel centres)

  • Ground Clearance

    • Steering pin - 9 in

    • Fire box - 11½ in

    • Spray hood - 6 in

 

Phoenix Bitumen/Tar pressure distributor, 1,000 gal, Model E

Phoenix Bitumen/Tar pressure distributor, 1,000 gal, Model E

Phoenix Bitumen/Tar pressure distributor, 1,000 gal, Model E from rear

Description
  1. The Phoenix bitumen/tar pressure distributor, Model E, is an independent four-wheeled trailer unit designed to handle all types of tar and bituminous material of spraying grades.  The spraybar is of the constant pressure type, allowing accurate application of the material by varying the speed of the towing vehicle.

  2. The insulated tank, which has a capacity of 1,000 gallons, is fitted with a non-splash manhole cover with quick-action fastener, washplates, drain cock, sump, overflow pipe, dipstick and thermometer.  In the front end of the tank are fitted two oil burners to maintain the heat of the material in the tank.  These are of the low pressure atomising type, and are coupled to the fuel and air supply lines by exterior flexible connections.  Behind the tank, a hot-box which houses the distributor pump and distributor valves is positioned on the chassis members.

  3. At the rear of the chassis is mounted a water-cooled diesel engine, with built-in clutch and reduction gear, which drives the distributor pump through a flexible coupling.  The engine also drives, through a clutch and V-belt, a rotary blower to supply compressed air to the burners and also to pressurise the burner fuel tank. This tank is located on the right-hand side of the vehicle.

  4. An operator's platform at the rear of the trailer gives access to the engine and controls, distributor valves, and spray unit controls.

  5. The spraybar is a square section casting with 18 spray nozzles spaced equally along the bar.  Each nozzle has a separate shut off valve.  These valves are ganged together for operation by a single control lever, but they can also be closed individually to give a width of spray less than the maximum.  A handspray take-off attachment is provided together with ancillary equipment.  A pressure gauge is fitted on the spraybar to indicate the pressure of the material passing through.

  6. The chassis, of channel section members, is supported by semi-elliptic springs on front and rear axles.  At the front is a forecarriage and turntable assembly to which is attached the towbar. The brakes, which are fitted to the rear wheels only, are air-operated from the tractor vehicle.  A hand-brake lever for parking purposes is located forward of the left-hand rear wheel and is accessible to the operator at the side of the vehicle.

MT required for transportation -

  • Hands or Templewood trailer (for transportation)

  • AEC Matador 4x4 Tractor. (for towing)

This item of equipment appears to have been added to the 2nd Edition by the issue of AL51.

Engine

Petter, AVI, Series 2 Mk 3, single-cylinder, water cooled, Diesel engine:  Capacity - 33.73 cu in:  BHP - 5 at 1,500 rpm

Machine Specification

Capacity - 1,000 gallons

Suspension

  • Rear axle-10-leaf semi-elliptic springs, anchored by shackles to chassis members

  • Front axle - 10-leaf semi-elliptic springs, anchored by shackles to forecarriage members

Wheels

  • Front - India, Code No. 0134, 6-stud, roller bearing type

  • Rear - Phoenix, Drgs. Nos. 129 and 129/I, 8-stud, mastic type

Tyres

  • Front - 900 x 16, high pressure, General Service tread

  • Rear-36 x 8, high pressure, General Service tread

Brakes - Clayton-Dewandre, air-operated, two line system applied to Girling brakes, 15¼ in. x 5 in., on rear wheels only.  Controlled from towing vehicle or, for parking, by hand brake on trailer through a cross-shaft and operating rods to a slotted link mechanism on the rear axle.

Steering - Forecarriage on front wheels with tow-bar (3 in. clear eye)

Burner Specification

Make and Type - Two Urquhart straight jet burners, Type MFF, No 2C

Fuel -  Light diesel oil or any distillate oil

Consumption - 1¾ to 2 gall, per hour maximum per burner

Fuel pressure - Fuel fed to burners by air pressure imposed on fuel in closed fuel tank.  Air pressure in tank approx. 5 lb. per sq. in.

Fuel control valves -  Graduated in divisions of 1 to 7

Air pressure - 5 lb. per sq. in., determined by air relief valve at blower discharge (non-adjustable).  Loss due to pipes may reduce pressure to approx. 3½ to 4 lb. per sq. in. at burners.

Fuel filter (tank to burner) - Spirax angle strainer

Transmission/Blower/Distributor Equipment

Transmission

Drive for bitumen/tar pump - McLaren clutch on crankshaft extension (half engine speed) coupled to pump through a Crofts (Bradford) Crown Pin ND type flexible coupling.

Drive for blower - Pulley on flywheel end of crankshaft with V-belt (48A) drive and dog-type clutch on blower drive shaft

Blower

Type - William Ailday, 3P2 rotary blower with intake filter, and air relief valve to operate at 5 lb. per sq. in.

Dia. of engine pulley - 4 in. o/d

Dia. of blower pulley - 6.75 in. o/d.

Distributor Equipment       

Pump - Stothert & Pitt, rotary displacement, Type 2B, with built-in relief valve set to operate at 25 lb. per sq. in. (adjustable).  Maximum capacity 60 Imp. gall, per min.

Spray control valves - Phoenix 2 in. 3-way gland cocks

Spraybar - Phoenix, with 18 built-in nozzles having shut-off valves operated from platform

Spraybar height adjuster - Adjusted so that, when spraying, ground clearance of spray nozzles is normally 15 in.

Width of spray - 7ft. 10 in.

Accessories - Handspray 15 ft, long complete with union, hose, spraylance and nozzle

Pressure gauge - Dial type, connected to spraybar casting to register pressure of material in spraybar in lb. per sq. in.

Thermometer - Dial type, fitted on top of tank; registers temperature of material in tank.  Calibrated 0-500 deg. F.

Dipstick - Located at top of tank and withdrawn by rotating hand-wheel.  Calibrated in increments of 50 gall. and         marked T.D.L. (Tube Danger Level)

Technical Data

Weights

  • With all tanks empty - 8,400 lb

  • With all tanks full - 10,240 lb

Overall dimensions: -

  • Length (excluding tow-bar) - 16 ft. 4 in

  • Length (including tow-bar) - 21 ft. 4 in

  • Width (spraybar)- 7 ft. 10 in

  • Height (to top of manhole fastener) - 9 ft. 4 in

  • Diameter of manhole - 1 ft 6 in

  • Wheelbase - 8 ft 10 in

  • Track -  6 ft 0 in

  • Ground Clearance

    • with spray shields - Nil

    • Spray nozzles to ground (operational) - 1 ft 3 in

    • Spraybar fully up - 1 ft 6 in

    • Spraybar fully down - 1 ft 0 in

  • Minimum turning radius - 16 ft 10 in

 

Phoenix Bitumen/Tar Sprayer, 200, 250 and 300 gal, Type PA (only 250 gallon model used by RAF ACB)

Phoenix Bitumen/Tar Sprayer, 200, 250 and 300 gal, Type PA (only 250 gallon model used by RAF ACB)

Description
  1. The only important differences in the three models of bitumen/tar sprayers described here are in their capacity and overall height, and in the number of burners incorporated.

  2. Each is a two-wheeled unit on pneumatic tyres designed for towing by an MT vehicle.  The hull consists of a trough-shaped boiler pan held in an outer casing, the space between allowing hot gases from the burners to flow around the boiler pan.  Loading from barrels is effected by means of two rectangular holes in the top of the casing, the hinged covers of which act as warming hoods.  A barrel may, be placed on the rollers above each hole and both barrels allowed to drain simultaneously.

  3. The low overall height of the machine allows barrels to be rolled from the towing vehicle straight over the heater manholes, and collapsible ramps are fitted to the machines to facilitate this method of loading.

  4. In the 250 gallon and 300 gallon models, two Phenoil burners are mounted on the front plate; one burner only is fitted to the 200 gallon machine.  The burners receive fuel from a tank mounted directly above them.  The fuel tank is pressurised by means of a hand-operated air pump mounted in the end of the tank, and fuel thus forced into the burners is vaporised in a helical coil of pipe before reaching the burner nozzle.  When spraying it is necessary to operate the air pump occasionally to maintain the tank pressure at approximately 20 lb. per sq. in.

  5. The spray unit is mounted at the rear of the machine and comprises a rotary displacement pump coupled through a dog type clutch to a Villiers four-stroke, air-cooled gasoline engine.

  6. Brakes of Girling type are fitted, operated by cable link from the towing vehicle or by lever from the trailer.

MT required for transportation -

  • Tender, Tipping. (for towing)

This item of equipment appears to have been added to the 2nd Edition by the issue of AL51.

Engine

Villiers, Mk 20 RG, single-cylinder, side valve, air-cooled, petrol:  Capacity - 12.6 cu in:  BHP - 2.1 at 2,100 rpm

Machine Specification

Capacity - 200, 250, or 300 gallons (200 and 300 gallon models - AMWD units only)

Suspension - Two pivoted stub axles, suspended from the hull by nine-leaf semi-elliptic springs

Wheels and tyres -

  • Hubs: 5- or 6-stud, taper roller bearing type

  • Tyres - pneumatic, high pressure GS type

  • Tyre sizes:

    • 800 x 19 (200- and 250-gall. machines)

    • 900 x 19 (300-gall. machines)

Burner Specification

Make and Type - Phoenix Phenoil

Number

  • 200 gall machine - 1

  • 250 &300 gall machines - 2

Fuel -  Diesel oil 40 octane

Pressuring - Reciprocating type air pump, hand-operated

Accessories and Operating Data

Bitumen/tar pump - Stothert & Pitt Type IA, rotary displacement pump

Spray lance - Single nozzle type; nozzle dia. ¼ in

Burner fuel filters - Spirax angle type with cylindrical brass screen 1/64 in. holes, 6½ - in. sq.

Barrel loading ramp - To enable barrels to be rolled from towing vehicle straight over heater manhole

Thermometer - Straight type, fitted on top of casing

Fire extinguisher - Pyrene, Stores Ref. 53Y/82

Engine fuel consumption - 0.27 gall. per hr. on full load

Burner fuel consumption - 4 gall, per hr. (per burner)

Technical Data

Weights

  • With all tanks empty - 4,445 lb (200 gall), 4,482 lb (250 gall), 4,846 (300 gall)

  • With all tanks full - 6,606 lb (200 gall), 7,143 lb (250 gall), 8,207 (300 gall)

Overall dimensions: -

  • Length - 12 ft. 8 in

  • Width - 7 ft. 5 in

  • Height (200 & 250 gall machines) - 5 ft. 11 in

  • Height (300 gall machine) - 6 ft. 2 in

  • Track -  6 ft 5 in

  • Ground Clearance - 6 in

  • Turning radius - 8 ft 0 in

  • Height to tow-eye (trailer level) - 2 ft 5 in

  • Loading height (ramp level) - 4 ft 0 in (200 & 250 gall machines)

  • Loading height (ramp level) - 4 ft 3 in (300 gall machines)

 

Phoenix Tar Boiler, 300 gal, Type PA

Phoenix Tar Boiler, 300 gal, Type PA

Description
  1. The machine described here is similar to the 300-gallon unit dealt within the preceding chapter of this section, except that in the present instance the spraying pump is of plunger type and is hand-operated, and the control valve is of different pattern.

MT required for transportation -

  • Tender, Tipping. (for towing)

This item of equipment appears to have been added to the 2nd Edition by the issue of AL52.

Engine

Villiers, Mk 20 RG, single-cylinder, side valve, air-cooled, petrol:  Capacity - 12.6 cu in:  BHP - 2.1 at 2,100 rpm

Machine Specification

Capacity - 300 gallons

Suspension - Two pivoted stub axles, suspended from the hull by nine-leaf semi-elliptic springs

Wheels and tyres -

  • Hubs: 6-stud, taper roller bearing type

  • Tyres - pneumatic, high pressure GS type

  • Tyre sizes - 900 x 19

Brakes - Girling type for 10 in, dia. x l½ in. wide drums; operated from front of trailer by hand lever and cable linkages; provision for operation from suitably equipped towing vehicle

Burner Specification

Make and Type - Phoenix Phenoil

Number - 2

Fuel -  Diesel oil 40 octane

Pressuring - Reciprocating type air pump, hand-operated

Accessories and Operating Data

Bitumen/tar pump - Single-acting, plunger type pump, cylinder dia. 3 in.; hand-operated by reversible lever for use on either side of machine

Spray lance - Single nozzle type; nozzle dia. ¼ in, plug type turn cock ¾ in.

Burner fuel filters - Spirax angle type with cylindrical brass screen 1/64 in. holes, 6½ - in. sq.

Barrel loading ramp - To enable barrels to be rolled from towing vehicle straight over heater manhole

Fire extinguisher - Pyrene, Stores Ref. 53Y/82

Burner fuel consumption - 4 gall, per hr. (per burner)

Pressure in fuel tank - 20 lb per sq in

Technical Data

Weights

  • With all tanks empty - 4,508 lb

  • With all tanks full - 7,918 lb

Overall dimensions: -

  • Length - 12 ft. 8 in

  • Width - 7 ft. 5 in

  • Height (300 gall machine) - 6 ft. 0 in

  • Track -  6 ft 5 in

  • Ground Clearance - 10 in

  • Turning radius - 8 ft 0 in

  • Height to tow-eye (trailer level) - 2 ft 5 in

  • Loading height (ramp level) - 4 ft 3 in

 

Phoenix Bitumen/Tar pressure distributor (lorry mounted), 1,000 gal, Model D

Phoenix Bitumen/Tar pressure distributor (lorry mounted), 1,000 gal, Model D - travelling

Phoenix Bitumen/Tar pressure distributor (lorry mounted), 1,000 gal, Model D - working

Description
  1. This unit comprises equipment for the pressure distribution of tar and bituminous materials mounted on an all wheel drive, six wheel transporter capable of reaching sites in difficult terrain.

  2. The distributor equipment incorporates a rotary displacement pump with a capacity of 250 ill per min driven by a four cylinder diesel engine developing 34 bhp.  The spray-bar with extensions has a maximum width of 21 ft.  The temperature of the spraying material is maintained by oil-fired burners of the low-pressure atomising type, air for the burners being supplied by a rotary blower driven from the pump engine.  All pipe-lines and spray-bars can be cleaned by solvent circulated by the pump from a dope tank mounted on the vehicle.

  3. The suction, delivery and circulating valves are operated by a single handwheel control fitted on the right-hand side of the vehicle.

This item of equipment appears to have been added to the 2nd Edition by the issue of AL61.

Engines

Distributor - Perkins, Type P41 Mk 3N, 4-cylinder, water-cooled, Diesel:  Capacity - 3.14 litres:  BHP - 34 at 1,800 rpm (governed)

Transporter - AEC, Type A216F, 6-cylinder, water-cooled, Diesel:  Capacity - 9.6 litres:  BHP - 125 at 1,800 rpm (governed)

Machine Specification

Distributor

Capacity - 1,000 gallons

Burners (Two)

  • Make and Type - Urquhart Model 2C low-pressure atomizing type

  • Fuel - Light diesel

  • Fuel filter - Spirax angle strainer

  • Fuel feed - Air pressure imposed on fuel in closed tank; air pressure required 5 lb per sq in; air consumption 250 cu ft per min. of free air.

  • Flame regulation - Oil control valve

Blower           

  • Make and Type - William Allday, Type  BP2, rotary blower, with air intake filter and relief valve set to operate at 5 lb per sq. in.

  • Working pressure - 5 lb per sq  in at 1,000 rpm

  • Capacity - 250 cu ft per mm of free air

  • Drive - From equipment engine by pulley on flywheel end of crankshaft, dog clutch on blower drive shaft.

Distribution Equipment

  • Pump   Barclay Kellett, Type BK, rotary displacement with pressure compensator (adjustable).  Working pressure 25 lb per sq. in.

  • Pump drive - Rockford clutch and power take off

  • Pressure gauge - Diaphragm type

  • Spraybar - Phoenix, length 7 ft 6 in with six x 2 ft 6 in extensions, extending to 21 ft bar; 20 x ¼ in dia nozzles on 7 ft 6 in bar; six on each extension.

  • Spraybar height adjuster - Screw

  • Method of cleaning - Solvent, circulated by pump

Distributor Accessories

  • Handspray - Length 30 ft., including handlance

  • Filling hose - Two lengths of 15 ft., complete with standpipe

  • Tachometer - Wheel type, with dial in driver's cab registering speed of vehicle in ft. per mm.

  • Signal bell - In driver's cab, operated from distributor operator's platform

Transporter

Transporter Complete

  • Make and Type - Douglas, Type TK6, 6 x 6 transporter chassis

  • Capacity - 15 tons

Clutch - Single plate

Gearboxes

  • Main gearbox - Four speeds and reverse

  • Auxiliary gear box - Two speed type

    • High ratio 1 to 1 (6-wheel drive, or rear wheel drive only for main road)

    • Low ratio 2.3 to 1 (6-wheel drive only for cross-country and steep gradients)

Gear Ratios - In conjunction With 7-9 to I rear axle:-

  Primary Gear Primary with axle Combined Gearbox Ratio

Overall

1st gear 5.00 to 1 39.5 to 1 11.55 to 1 91.25 to 1
2nd gear 2.69 to 1 21.35 to 1 6.215 to 1 49.1 to 1
3rd gear 1.59 to 1 12.57 to 1 3.657 to 1 29.0 to 1
4th gear 1 to 1 7.9 to 1 2.31 to 1 18.25 to 1
Reverse 6.43 to 1 50.8 to 1 14.85 to 1 117.3 to 1

Propeller shafts and Universal Couplings - Inter gearbox: Hardy Spicer needle roller, 1600 Series Gearbox to inter-axle:  Hardy Spicer needle  roller, 1600 Series           

Steering - Worm and nut type; right-hand drive forward control

Axles

  • Front - Double reduction, bevel and double helical, fully floating

  • Rear - Worm drive, fully floating

 Suspension - Semi elliptic, laminated leaves

Brake Equipment

  • Foot - Air pressure. 

    • Reservoir air pressure (gauge on dash) - 95-100 lb per sq. in. 

    • Volume of air reservoir - 2.17 cu ft (3,750 cu in.). 

    • Volume of air compressor - 7 cu ft per mm

  • Hand - Mechanical, rear bogie only

Wheels and Tyres

Front and rear - Single  split rim type wheels fitted with 14.00 x 20 low-pressure cross-country type tyres.

Cab - Two-man type, driver's seat adjustable fore-and-aft seat fixed; insulated roof with Ashanco type ,vent; both windscreens open and rear sliding window is fitted.

Towing attachment -  At front end only (see "Dimensions")

Operating Data

Width of spray - 21 ft. maximum

Distributor pump output - 250 gall. per min. at 400 rpm.

Burner fuel consumption - 2 gall, per hr. approx.

Maximum and minimum road speeds

  • 30.6 mph. at 1,800 rpm.

  • 2.6 mph. at 1,800 rpm.

Tractive effort - 17,700 lb.

Maximum gradient - 1 in 25 (12 ton gross)

Approximate fuel consumption

  • Travelling to site, 9 mpg.

  • Operating on site, 4 mpg. (Subject to variation depending on driving technique and nature of ground)

Technical Data

Weights

  • With all tanks empty - 12 tons 18 cwt

  • With all tanks full - 17 tons 15 cwt

Overall dimensions: -

  • Length - 24 ft. 6 in

  • Width - 7 ft. 6 in

  • Height - 10 ft.8 in

  • Wheelbase -13 ft 11½ in

  • Distance between bogie centres - 4 ft 6 in

  • Track -  6 ft 3-1/8 in (front), 5 ft 10¾ in (rear)

  • Turning circle - 57 ft 10½ in (Left), 63 ft 10½ in (Right)

  • Height of towing jaw - 42 in

  • Dia of tow-pin - 1¾ in

  • Ground Clearance

    • Spraybar fully raised - 18 in

    • Spraybar fully down - 12 in

    • Nozzles to ground, operational - 15 in

    • With sprayshields - 10 in

 

Bawn, 1,500 Gallon, water distributor

Bawn, 1,500 Gallon, water distributor from front

Bawn, 1,500 Gallon, water distributor from rear

Description
  1. The Bawn water distributor is an independent four-wheeled trailer unit designed for the carriage and spraying of water.  The water may be discharged from the spraybar, or a separate discharge orifice, by gravity or under pressure.

  2. Th tank, which has a capacity of 1,500 gallons is fitted with a non-splash manhole cover with a quick-action fastener, baffle plates and a sump.  Attached to the sump is a cable controlled ON/OFF valve actuated by a control lever mounted near the operator's seat on the top of the front of the tank.  Stowages for flexible hoses, and a spraybar cleaning brush, are provided in tubes along the side of the tank.

  3. The pumping unit, consisting of a self-priming centrifugal pump directly coupled to a single-cylinder air-cooled gasoline engine is mounted in a box attached to the right-hand side of the chassis.  Connection between the pump and the tank and spraybar piping is by two short lengths of easily detachable flexible piping.  Two control valves, mounted at the rear of the trailer chassis, may be set in conjunction with the appropriate connections of the short flexible the pump to provide any one of the following services: -

    1. Gravity discharge.

    2. Gravity spray.

    3. Pressure discharge.

    4. Pressure spray.

    5. Pressure fill.

  4. The spraybar, mounted athwartships at the rear of the chassis, consists of a circular section pipe drilled, at its rear, with two rows of holes.  Each end of the spraybar is fitted with a detachable cap; the caps may be removed for the insertion of a cleaning brush.

  5. The chassis is supported by semi elliptic springs on front and rear axles.  At the front is a forecarriage and turntable assembly on which is mounted the quick-detachable draw bar. Rotation of the forecarriage assembly is restricted by stops to limit the turning circle.

  6. Four wheel brakes are vacuum-operated from the tractor vehicle.  A hand brake lever for parking purposes is located on the left-hand side of the chassis; the hand brake operates on the rear wheels only.

  7. A spare wheel is carried in a cage under the left-hand side of the chassis.  Towing and lashing eyes are welded to the front and rear of the chassis

  8. Two side lights, two rear lights and a number plate light are fitted and wired for connection to the tractor vehicle.

This item of equipment appears to have been added to the 2nd Edition by the issue of AL64.

Engines

JAP Industrial, Model 2A, single-cylinder, air-cooled, Diesel:  Capacity - 98cc:  BHP - 1.2 at 2,500 rpm

Machine Specification

Capacity - 1,500 gallons

Specification Reference - FVRDE Spec No 9572

Main valve - Emco, Type B.380, 2½ in,, remote-controlled by Bowden cable from operator's seat

Control valves - Two, Crane, Type D.316, 2½ in., direct operation from rear of chassis

Spraybar - 7 ft overall length.  Two rows of 56 holes 1/8 in dia by 1 in, staggered pitch.  Removable cap at each end for cleaning access

Manhole - 16 in. dia. Cover secured by bridge bar and wing nut.    A hooded open baffle vent is fitted to cover.

Filling and discharge hoses - Three 10 ft. flexible hoses stowed in carrier tubes attached to the sides of tank.  Foot valve and strainer provided            

Operator's seat and platform - Operator's seat and platform provided at the front of the tank.  Access to platform provided by steel ladder welded to chassis frame and platform brackets.

Tools and accessories - A toolbox is welded to the right-hand side of chassis frame.  Fire extinguisher, gasket set for tank and piping, two hose wrenches, tool kit for engine and pump, gasoline funnel and engine and pump instruction books carried in toolbox.     A 7 ft cleaning brush for the spraybar is carried in the upper tube on the nearside of the tank.

Pump Specification

Make and Type - Ransomes & Rapier, Type 2P5.  Self-priming, centrifugal

Drive - Direct

Impeller speed - 2,500 (governed engine speed)

Approximate output at governed speed: -

  Total head ft gall./hr gall/min
5 ft Suction 20 4,800 80
30 4,200 70
40 3,180 53
55 1,200 20
15 ft Suction 20 3,900 65
30 3,480 58
40 2,700 45
55 1,140 19
25 ft Suction 30 2,400 40
40 1,980 33
50 960 16
Trailer Specification

Make and Type  - Taskers, 7½ ton, 4-wheeled, Mark 1, trailer.

Construction - Mild steel channel sections, welded and braced.

Suspension

  • Rear axle; semi-elliptic springs anchored by shackles to chassis members.

  • Front axle; semi-elliptic springs anchored by shackles to forecarriage members

Wheels - 7.33 x 20, l¼ in. dish, 10 stud, three-piece

Tyres - 11.00-20.00, 14 ply, Heavy Duty tread

Brakes - Clayton-Dewandre, vacuum-operated, single line system operating Girling brakes on all four wheels.  Controlled from tractor vehicle, or, for parking, by hand brake lever on trailer chassis.  Hand brake lever operates on rear wheels only.

Steering - Forecarriage on front wheels.  Easily removable draw-bar with 3 in. dia. tow-eye.  Steering lock restricted.

Technical Data

Weights

  • Front axle - 4,508 lb

  • Rear axle - 4.060 lb

  • Gross - 8,568 lb

Overall dimensions: -

  • Length, tow-bat extended - 20 ft. 3 in

  • Length, tow-bat removed - 14 ft. 0 in

  • Width - 7 ft. 6 in

  • Height - 8 ft.10 in

  • Wheelbase -8 ft 6 in

  • Track -  6 ft 6 in

  • Turning circle (minimum) - 30 ft 0 in

  • Filling height of manhole - 8 ft 8 in

 

Phoenix Tar distributor, 300 gal, Type PA

Phoenix Tar distributor, 300 gal, Type PA

Description
  1. The machine described here is of the trailer type similar to the bitumen/tar sprayer described above Section but is fitted with a spray bar and air pressure brakes and has a different type of pumping unit.

  2. The spray bar is fitted to the rear of the trailer and is supplied from a rotary displacement pump driven, through a clutch and chain reduction, by an air-cooled gasoline engine.

  3. A 2-line air pressure system with an air reservoir operates Girling type brakes.  The vehicle used for towing this distributor must be equipped with an air system suitable for operating the trailer brakes.

MT required for transportation -

  • Suitable Tender, Tipping. (for towing)

This item of equipment appears to have been added to the 2nd Edition by the issue of AL67.

Engine

Peter, Model PA1, single-cylinder,  air-cooled, petrol:  BHP - 5 at 1,650 rpm

Machine Specification

Burners - 2 Phoenix Phenoil, coil type atomisers

Burner fuel - Diesel oil or kerosene

Pump - Stothert & Pitt, Type 2B, rotary displacement, engine-driven

Spraying Equipment - Spray bar with 14 nozzles, 2 hand lances with single nozzles

Electrical Equipment - 1 rear light.  FVD standard cable and plug connector.

Parking jacks - 1 screw type and 2 sliding types

Burner Specification

Make and Type - Phoenix Phenoil

Number - 2

Fuel -  Diesel oil 40 octane

Pressuring - Reciprocating type air pump, hand-operated

Accessories and Operating Data

Maximum towing speed - 20 mph.

Filling - The machine is fitted with ramps to facilitate filling operations. Drums can be rolled into position from the towing vehicle by using the ramps

Binder pump capacity - 50 gall per min

Pump working pressure - 251b per sq. in

Burner fuel consumption - 3 gall. per hr. (each burner)

Heating rate - 4 deg F per min

Spray bar - 14 nozzles spaced at 6 in centres

Hand lances - Each fitted with ¼ in dia nozzle, a ¾ in plug type turncock and 15 ft of metallic armoured hose.

Dimensions  

  • Length of spray bar 'T' - 7 ft. 6 in.

  • Clearance under spray bar (with draw bar horizontal) 'C' - 13 in.

  • Diameter of draw-off cock - 2 in.

  • Height of draw-off cock - 2 ft. 2 in.

  • Filling height 'F' - 4 ft. 5 in

  • Height of tow-eye with draw bar horizontal 'E' - 2 ft. 5 in.

Phoenix Tar distributor, 300 gal, Type PA - Dimensions

Technical Data

Overall dimensions: -

  • Length 'M' - 15 ft. 3 in.

  • Height with ramp raised 'A' - 6 ft. 11 in.

  • Height (top of hoods) 'B' - 6 ft. 1 in.

  • Width (spray bar) 'T' - 7 ft. 6 in.

  • Rear stands to rear of spray bar 'L' - 2 ft. 9 in

  • Rear stand to wheel centre 'K' - 3 ft. 5 in

  • Front stand to wheel centre 'H' - 6 ft. 4 in.

  • Front stand to end of tow eye 'G' - 2 ft. 9 in

  • Clearance (bottom of body) 'D' - 12 in.

  • Axle clearance 'W' - 6 in.

  • Rear of spray bar to pump cover 'N' - 2 ft. 8 in

  • Rear of pump cover to raised ramp 'O' - 4 ft. 6 in

  • Raised ramp to front of hood 'P' - 2 ft. 2 in.

  • Hood to front of filling ramp 'R' - 3 ft. 6 in

  • Loading ramp to end of tow-eye 'S' - 2 ft. 5 in

  • Wheel track centres 'V' - 6 ft. 6 in

Weights     

  • Total unladen weight in working order - 5,600 lb

  • Total weight with full tanks ...   8,960 lb

 

Phoenix Bitumen/Tar pressure distributor, 1,000 gal, Model F (trailer mounted)

Phoenix Bitumen/Tar pressure distributor, 1,000 gal, Model F (trailer mounted)

Description
  1. The distributor is mounted on a four wheel pneumatic tyred trailer fitted with a turntable type steering, and two-line air pressure brakes to FVRDE standard, operating on all four wheels; a cable operated hand brake is fitted for use as a parking brake.  A battery and electric lights are fitted to the trailer and the system is wired for connection to the towing vehicle.

  2. The distributor tank is lagged with asbestos for heat insulation, and a large aperture at the top of the tank is fitted with covers and barrel rails for direct filling; a swivelling jib with block and tackle is provided and can be fitted to the front of the tank to facilitate filling from barrels.

  3. Two valves are fitted to the distributor system to enable the pump to be used for the following operations: -

    1. Filling from an outside source.

    2. Unloading the tank to an outside source.

    3. Transferring material from one source to another without using the distributor tank.

    4. Circulating material during heating.

    5. Supplying material under pressure to the spraybar.

    6. Supplying material to a handspray.

    7. Circulating flushing fluid through the system for cleaning purposes.

  4. A single cylinder diesel engine drives the gear type pump, through a roller chain.  The engine, with a radiator and clutch, is mounted as a self contained unit on the rear of the trailer chassis.

  5. Two vaporising type burners, using fuel oil or kerosine, are fitted to the rear of the distributor tank, for heating the material and the burners are pressure fed from a tank fitted on one side of the distributor tank; a flushing tank is fitted on the opposite side of the distributor tank, to contain a suitable solvent for flushing the distributor system.

  6. An operators platform is fitted at the rear of the distributor and all controls are conveniently sited so that all operations can be controlled from the platform.  The height of the spraybar is adjustable and is controlled by a handwheel from the operators platform.

This item of equipment appears to have been added to the 2nd Edition by the issue of AL74.

Engine

Peter, Model AV1, single-cylinder, water-cooled, Diesel:  BHP - 5 at 1,500 rpm

Machine Specification

Make and Model  - Phoenix Model F, Type 1 (trailer mounted)

Type - Binder distributor

Burners - 2 x Phoenoil tube type, vaporising burners

Burner fuel - Diesel oil or kerosine

Pump - Barclay Kellett, Model 4/10T, gear type

Spraying equipment - Spraybar with 13 nozzles, adjustable for height.  Hand lance with single nozzle, and flexible hose to give total length of 30 ft.

Filling hose - 2 x lengths of 15 ft flexible hose

Trailer Specification

 Make and Model - Tasker, 8 ton, 4 wheeled trailer

Steering - Turntable

Electrical Equipment

  • 12 volt 63 amp. hour battery,

  • Twin red rear lights and white number plate light

  • FVRDE standard cable and plug connector

Operating Data

Binder pump capacity - 100 gall. per min

Normal working pressure - 20 lb. per sq. in.

Burner fuel consumption - 4 gall, per hour (each burner)

Burner fuel feed pressure - 20 lb. per sq. in. (air pressure)

Heating rate - 2 deg. F. per min.

Spraybar - 13 nozzles spaced at 6 in. centres

Dimensions

  • Length of spraybar - 7 ft. 6 in

  • Filling height (direct filling) - 8 ft. 9 in.

  • Height of drain cock - 3 ft. 6 in (ground clearance)

  • Height of pressure filling connection  - 4 ft. 6 in. (ground clearance)

Technical Data

Overall dimensions: -

  • Length (drawbar vertical) - 18 ft. 3 in.

  • Height (less jib) - 8 ft. 9 in.

  • Width - 7 ft. 6 in

  • Wheelbase - 9 ft. 3 in.

  • Wheel track centres (front and rear) - 5 ft. 10 in.

  • Overhang, rear (operators platform to rear wheel centre) - 6 ft. 7 in.

  • Overhang, front (front of chassis to front wheel centre) - 2 ft. 5 in

  • Length of drawbar - 5 ft. 0 in

  • Height of tow-eye (drawbar horizontal) - 2 ft. 8 in.

  • Minimum ground clearance (under axles) - 1 ft. 2 in

Weights

  • Total unladen weight - 4 tons 12 cwt.

  • Front axle weight (unladen) - 1 ton 10 cwt

  • Rear axle weight (unladen) - 3 tons 2 cwt.

 

Phoenix Bitumen/water distributor, 1,000 gal, Model F (truck mounted)

Phoenix Bitumen/water distributor, 1,000 gal, Model F (truck mounted) - from front

Phoenix Bitumen/water distributor, 1,000 gal, Model F (truck mounted) - from rear

Description
  1. This distributor is similar to the equipment described in the previous entry but is mounted on a Bedford four wheeled chassis fitted with a four speed gearbox; the machine is suitable for spraying bitumen, road oil, tar or water.

  2. The distributor tank can be filled from barrels by suction through the power driven pump and provision is also made for direct filling; a jib crane with block and tackle is carried on the machine, and when required can be fitted to the front of the tank for loading drums from ground level to the barrel rails and filling aperture on the top of the tank.

  3. A three cylinder diesel engine drives a gear type pump, through a triplex chain, and in conjunction with two valves enables the machine to be used for the following operations: -

    1. Filling from an outside source.

    2. Unloading to an outside source.

    3. Transferring material from one source to another without using the distributor tank.

    4. Circulating material during heating.

    5. Supplying material under pressure to the spraybar.

    6. Supplying material to a handspray,

    7. Circulating flushing fluid through the systems for cleaning purposes

  4. Folding extensions may be fitted at the ends of the spraybar so that the standard 7 ft. 6 in. spraybar can be increased to 13 ft., 17 ft. or 21 ft.  In the illustration two 2 ft. extensions are fitted which when lowered will give a spraying width of 13 ft.; a total of six 2 ft. extensions are supplied.

  5. A 'fifth wheel 'tachometer is fitted to the RH side of the vehicle and is connected to a dial in the driver's cab.  A signal bell in the driver's cab is operated from the control platform at the rear of the machine.

This item of equipment appears to have been added to the 2nd Edition by the issue of AL80.

Engine

Perkins, Model P3, 3-cylinder, water-cooled, Diesel:  BHP - 22.25 at 1,500 rpm (governed)

Machine Specification

Make and Model  - Phoenix Model F, Type 1 (truck mounted)

Type - 1000 gall. Binder distributor

Burners - 2 x Phoenoil tube type, vaporising burners

Burner fuel - Diesel oil or kerosine

Pump - Barclay Kellett, Model 55/ST, gear type

Spraybar - Standard 7 ft. 6 in. spraybar with two folding extensions

Spraybar extensions - Six sections each 2 ft. long

Type of delivery - Flooded suction

Hand spray - Handlance and hose, total length 30 ft.

Filling hose - 2 x lengths of 15 ft flexible hose and stand pipe

Portable burner - "Monitor" Type 52, 5 pint

Truck Specification

Make and Model - Bedford, Type SLCG

Type - 7 ton 4 x 2, right-hand drive

Engine type - Four-stroke OHV.

Fuel - Gasoline

Brake horse-power - 113 at 3,000 rpm.

Number of cylinders - 6

Cooling - Water cooled

Starting system - Electric

Electrical system - 12 volt, single-pole, positive earth return

Operating Data

Binder pump capacity - 300 gall, per mm. at 500 rpm.

Normal working pressure - 20 lb. per sq. in.

Burner fuel consumption - 4 gall, per hour Max (each burner)

Burner air pressure - 20 lb. per sq. in.

Size of spraybar nozzles - ¼  in. orifice

Number of nozzles     

  • Standard spraybar (7 ft. 6 in.) - 14 nozzles at 6 in. centres

  • Extensions (2 ft. each) - 4 nozzles at 6 in. centres

Number of extension pieces - 6

Note

One, additional nozzle is fitted to each of the hinged elbows to which the extensions are fitted on the spray bar.

Dimensions

  • Length of spraybar - 7 ft. 6 in

  • Length of spraybar with 2 extensions - 12 ft. 9 in.

  • Length of spraybar with 4 extensions - 16 ft. 9 in

  • Length of spraybar with 6 extensions - 20 ft. 9 in.

  • Filling height (direct filling) - 9 ft. l½ in

  • Height of drain cock - 1 ft. 5 in.

  • Height of pressure filling connection  - 5 ft. 9 in.

  • Height of spraybar (variable) - 11 in. to 17 in.

  • Turning circle of vehicle (dia.) - 60 ft. 0 in.

Technical Data

Overall dimensions: -

  • Length - 23 ft. 10 in

  • Height (less jib) - 9 ft. 1½ in

  • Width - 7 ft. 8 in.

  • Wheelbase - 13 ft. 0 in

  • Wheel track centres

    • Front - 6 ft. 0¾  in

    • Rear - 5 ft. 7-3/8 in,

  • Overhang, front (front of chassis to front wheel centre) - 3 ft. 6½  in

  • Overhang, rear (rear operators platform to rear wheel centre) - 7 ft. 5 in

  • Ground clearance (under back axle) - 1 ft. 0 in

Weights

  • Total weight with all tanks empty - 6 ton 11cwt

  • Axle loading with all tanks empty

    • Front axle - 1 ton 18¾ cwt.

    • Rear axle - 4 ton 12¼ cwt.

  • Total weight with all tanks full - 10 ton 6 cwt.

    • Axle loading with all tanks full

    • Front axle - 3 ton 6 cwt

  • Rear axle - 7 ton

 

Bristowes bitumen/tar heater, 80 gal, Model Handy No 1

Bristowes bitumen/tar heater, 80 gal, Model Handy No 1

Description
  1. The model 'Handy No. 1' heater is a small mobile heater mounted on a three-wheeled pneumatic tyred trolley and fitted with a single hand-lance for spraying.  The cauldron is equipped with a pressure type of oil burner, which is suitable for burning light Diesel oil, gas oil, or kerosine; a bib-cock is provided for drawing off hot bitumen or tar.

  2. The trolley is steered by a draw-bar which is attached to the front wheel forks; the draw-bar is provided with drag handles and a tow-eye.  A parking brake hand-lever, fitted to the right-hand side of the trolley, operates internal expanding brakes on the rear wheels.

Stores Ref - 89D/148

MT required for transportation -

  • 30 cwt truck

This item of equipment appears to have been added to the 2nd Edition by the issue of AL92.

Machine Specification

Make and Model  - Bristowes, Model Handy No. I

Type - 80 gallon, oil fired, hand operated sprayer.

Burners - One coil type atomiser

Burner fuel - Diesel fuel, or kerosine

Pump - Bristowes No. 5 semi-rotary, hand operated

Spraying equipment - Hand lance. and 10 ft. length of metallic lined, armoured tubing

Operating Data

Filling - An aperture in the pan cover is fitted with a square lid, two angle section runners are provided on the top of the casing to support a barrel when filling the pan.

Filling height - 4 ft. 6 in

Height of bibcock - 1 ft. 7½ in

Size of bibcock - 1½ in

Burner fuel consumption - ¾ gall. per hr.

Hand lance - Single nozzle, fitted with regulating cock

Technical Data

Bristowes bitumen/tar heater, 80 gal, Model Handy No 1 - dimensions

Dimensions

  • Overall Length with draw-bar horizontal - 9 ft. 10 in

  • Overall length without draw-bar - 6 ft. 6 in.

  • Overall width - 4 ft. 8 in.

  • Overall height with chimney - 7 ft. 0 in

  • Overall height without chimney - 5 ft. 6 in

  • Rear wheel track - 4 ft. 2 in

  • Wheelbase - 3 ft. 9 in. (1143 cm.)

  • Height of draw-bar attachment point - 1 ft. 0 in.

  • Ground clearance (under rear axle) - 6 in

Total unladen weight - 1232 lb

 

Braham, Patterson and Benham Bitumen/Tar heater, 1,000 gal (trailer mounted)

Braham, Patterson and Benham Bitumen/Tar heater, 1,000 gal (trailer mounted)

Description
  1. The 1,000 gallon bitumen/tar heater is fitted with two Urquhart MFF, No. 2C straight jet type burners and an air pressure system supplied by a rotary sliding vane type compressor driven by an air-cooled gasoline engine.

  2. The plant is mounted on a pneumatic tyred, four-wheeled trailer chassis with a draw-bar and turntable type steering.  Girling brakes are fitted to the rear wheels, and can be operated by a vacuum system from the lowing vehicle, or by a hand lever for parking purposes.

  3. Four stabilizing jacks are fitted to the chassis to relieve the tyres of load when the plant is set up on a working site.  A crane post is mounted at the front of the boiler, and chain blocks and tackle are provided to facilitate filling operations when using drums of material.

  4. For towing purposes a flexible brake vacuum coupling hose is fitted on the trailer draw-bar; the towing vehicle must be provided with a vacuum operated braking system with a suitable connecting coupling for the trailer coupling plug.

  5. The plant is used to prepare bitumen or tar at the correct working temperature for use in conjunction with other plant for surfacing roads, runways or hard standings.

Stores Ref - 89D/146

MT required for transportation -

  • Normally towed - 10 tipper truck or tractor with vacuum brake system.

This item of equipment appears to have been added to the 2nd Edition by the issue of AL96.

Machine Specification

Make and model - Braham, Patterson and  Benham, 1,000 gall., pneumatic tyred trailer

Type - Bitumen/tar heater

Burners - Two Urquhart MFF No. 2C, straight jet

Burner fu - Light diesel oil or kerosine

Compressor - Reavell.  Rotary sliding vane type 3 in. dia. x 3¾ in.

Compressor drive - V-belt

Maximum air delivery

  • 9 cu. ft. at 5 lb. per sq. in. at 2,100 rpm.

  • 18.5 cu. ft. at 10 lb. per sq. in. at 2,100 rpm.

Compressor cooling - Air-cooled

Engine Villiers, Mk 10, single cylinder, air-cooled, petrol:  BHP 1 at 2,000 rpm, 1.3 at 3,000 rpm
Operating Data

Filling height - 9 ft.

Height of bibcock - 3 ft.

Size of bibcock - 2½ in

Technical Data

Braham, Patterson and Benham Bitumen/Tar heater, 1,000 gal (trailer mounted) - dimensions

Dimensions

  • Overall length with draw-bar horizontal - 16 ft.

  • Overall length without draw-bar - 17 ft.  1 in.

  • Overall height with crane - 14 ft.

  • Height with crane removed - 9 ft. 4 in.

  • Overall width - 7 ft. 5½ in

  • Ground clearance (under rear axle) - 1 ft. 3

  • Wheel base - 11 ft. 4 in.

  • Wheel track - 6 ft.

  • Turning circle - 23 ft. (dia.)

Weight

  • With tanks empty - 3 tons 8 cwt

  • With tanks full - 7 tons 19½ cwt

 

Phoenix Bitumen/Tar heating and storage plant, 2,500 gal.

Phoenix Bitumen/Tar heating and storage plant, 2,500 gal.  Phoenix Bitumen/Tar heating and storage plant, 2,500 gal.

Description
  1. The heating and storage plant is designed to decant tar or bitumen direct from drums, and produce a continuous supply of material heated to the correct working temperature.

  2. The tank is fitted with two interconnected valves which provide high and low level outlets.  The low level valve is only used when the whole contents of the tank are to be discharged; the high level valve is used when material is being decanted, and is kept open when a continuous supply is required.

  3. The high level valve is positioned at a level which will maintain a bulk of 2,500 gallons of heated material in the tank; material in excess of this amount only can be discharged from this valve.  If the high level valve is closed, an additional 500 gallons of material can be fed into the tank to provide a total of 3,000 gallons which can be stored in the tank.

  4. For decanting, one end is removed from each drum of material, then the drum is completely immersed in the bulk of material in the tank; as the drum is lowered into the material an equivalent amount is displaced and discharged through the high level valve. After the drum has been emptied, it is removed from the tank and the process is repeated.

  5. Three medium pressure oil burners are provided for heating the material, and fuel pressure is maintained by a rotary blower driven by an air-cooled gasoline engine; the tank is covered with insulating material to retain the heat.

  6. Two manholes are provided in the top of the tank for filling, and each is fitted with locating brackets to ensure that the drums are positioned correctly, when held in the tank; an operator's platform is positioned between the manholes.

  7. Two jib cranes and winches are fitted to the tank sides for handling drums, and each crane is provided with a pair of drum lifting tongs; the lifting tongs have swivel jaws to enable the tops to be removed from the drums, whilst they are on the ground; when the drums are lifted, they can be swivelled to the inverted position so that the open ends face downwards when immersed in the tank.

  8. Two flanged connections are fitted to the top of the tank for use as loading or circulating connections, two thermometers are fitted to register the temperatures at the high and low levels, and a dipstick is fitted to indicate the level of the contents between 2,500 gallons and 3,000 gallons.

Stores Ref - 89D/150

MT required for transportation -

  • Low loader

This item of equipment appears to have been added to the 2nd Edition by the issue of AL97.

Plant Specification

Make and Model -  'Phoenix' decanter and Storage heater

Type - Three burner, 3,000 gall. portable

Burners - SFF type atomising, medium pressure

Burner fuel - Light diesel oil, or any distillate fuel oil

Blower - Wade No. 7 air-cooled rotary blower

Decanter outlet valves - Two 3 in. (one high and one low level)

Engine Villiers, Mk 25, single cylinder, two-stroke, air-cooled, Gasoline/oil engine:  BHP - 2½ at 2,000 rpm (governed)
Operating Data

Maximum output (decanting) - 350 gall/hour

Fuel consumption rate

  • Temperature rise at 35 deg.F/hour - 12 gall/hour (3 burners)

  • Temperature rise at 45 deg.F/hour - 15 gall./hour (3 burners)

Dimensions (Plant in working condition)

  • Overall length - 15 ft. 8 in

  • Overall width (cranes swung inboard) - 8 ft. 6 in

  • Overall width (cranes swung outboard) - 10 ft. 7 in

  • Overall height (top of chimney) - 16 ft.

  • Filling height (height of manholes) - 9 ft. 5 in.

  • Height of discharge (low level valve) - 2 ft.

  • Height of loading and recirculating connections - 9 ft. 3 in.

Weights

  • Weight of plant with all tanks empty - 6 tons

  • Total weight filled to decanting level (2,500 gall.) - 17 ton 0¼ cwt

  • Total weight filled to capacity (3,000 gall.) - 19 ton 0½ cwt

Technical Data

When moving the plant between working sites, the tank must be emptied.  The crane jibs and the top portion of the chimney are removed and stowed on the top of the tank.

Dimensions (partially dismantled)

  • Overall length - 15 ft. 8 in. (478 m.)

  • Overall width - 7 ft. 6 in. (2.29 m.)

  • Overall height - 9 ft. 9 in. (2'97 m.)

Total unladen weight - 6 tons

 

 

Millars' Drying and Mixing Unit, Type 14/10/Millars' Drying and Mixing Unit, 10 cu yd (AL54)

Millars' Drying and Mixing Unit, 10 cu yd

Description
  1. The drying and mixing unit illustrated comprises a portable plant in which both drying and mixing operations can be carried out in one drum. It has a wide range of application, and it is suitable for use on the following: -

    1. Single and two-coat asphalt work-hot process.

    2. The production of pre-coated chippings.

    3. Sand drying.

    4. Drying chippings for use in a bitumen/tar mixing unit.

    5. Heating old asphalt for repair work.

    6. The production of all types of bituminous macadams.

    7. Tar-macadams.

  2. The unit consists of a loader gear, a steel drying and mixing drum fitted with paddles and rotating on steel rollers, and oil-burning heating apparatus, combustion chamber and discharge box.  The machines in use by the Service are fitted with either a Lister diesel engine, or one of two types of Ruston diesel engine; other variations may be found in the transmission arrangement and in the running gear, steel-tyred wheels generally being fitted to earlier models and pneumatic-tyred wheels to machines supplied against more recent contracts.  The data here has been made as comprehensive as possible, but the dimensions should be read as relating to modern machines.

  3. Great care must be taken to level the plant both ways before commencing work, particular attention being paid to the attachment of the detachable loader (if fitted).  Failure to do this may result in a strained frame and undue wear of the drum rollers.  Whenever moved, the plant should be examined on arrival on a new site to ensure that all mints and bolts are tight and that no damage has resulted from transportation.

  4. The materials to be dried or mixed are loaded into the power-operated loader, hoisted and tipped into the rotating drum, which is heated by the oil-burning apparatus.

MT required for transportation -

  • Hands or Templewood trailer (for transportation)

  • AEC, Matador, 4x4, Tractor (for Towing)

Originally included in AP3036 (1st Edition), this entry has been updated to AL54 (2nd Edition).

Engines

Lister, CD8, Vertical diesel, four-stroke, 2 cylinder:  Capacity - 139 cu in:  BHP - 8 at 1,200 rpm

Ruston, 1 VSO, Vertical diesel, four-stroke, single-cylinder:  Capacity - 77.57 cu in:  BHP - 7.5 at 1,000 rpm. 

Ruston, 1 VSH, Vertical diesel, four-stroke, single-cylinder:  Capacity - 77.57 cu in:  BHP - 7.5 at 1,000 rpm.  (On Machines No 24,325 onwards, 9 at 1,200 rpm)     

Machine Specification

Transmission              

Machines fitted with engine governed at  1,200 rpm - Roller chain from engine crankshaft to countershaft, thence to bevel pinion shaft   which operates drum. Chain drive from bevel pinion shaft to loader hoist shaft.  Belt and pulley drives from crankshaft to blower fan and exhaust fan         

Machines fitted with engine governed at 1,000 rpm - As above, except that initial drive is from crankshaft to bevel pinion shaft, no countershaft being fitted.

Heating equipment

  • Burner - Rotamiser, Type 2E diesel fuel burner.  Comprises rotor with outer vanes driven by blower, and an atomising cone.  Burner slides on rails for withdrawal from combustion chamber

  • Combustion chamber - Cylindrical, lined with fire-brick, open at each end. Burner flame issues from chamber into mixing drum

  • Blower - Keith Blackman narrow-pattern rotary fan, Type 8 (No 1 KB).  Driven from engine crankshaft by belt and pulley.  Air supplied to burner through flexible metallic tubing and regulated by air damper valve in burner.

  • Exhaust fan - Located at rear end of trunk leading from discharge box.  Driven from engine crankshaft by belt and pulley.   Exhaust draught regulated by fan damper in trunk and door in discharge box at operating (front) end

Wheels and tyres

Before Machine No 18719 - Steel wheels and tyres

Machine No. 18719 onwards - Pressed steel, well-base rim, disc type wheels, with plain bearing type hubs and 900 x 16 pneumatic tyres

Operation

Machines fitted with Type 1 VSH engine governed at 1,200 rpm. 

Engine, under load - 1,200 rpm

Countershaft - 786 rpm

Bevel pinion shaft - 170 rpm

Drum - 16 rpm

Loader hoist shaft - 32 rpm

Machines fitted with Type 1 VSH or 1 VSO engine governed at 1,000 rpm.    

Engine, under load - 1,000 rpm

Bevel pinion shaft - 169 rpm

Drum - 16 rpm

Loader hoist shaft - 32 rpm

Data

Weights

  • Gross - 9,453 lb

  • Nett - 8,994 lb

Overall Dimensions

  • Length (over draw-bar) - 13 ft. 0 in

  • Width (loader skip raised) - 11 ft. 13 in

  • Width (loader skip lowered) - 13 ft. 10 in

  • Height (loader skip raised) - 10 ft. 11 in

  • Height (loader skip lowered) - 10 ft. 2 in

  • Wheelbase - 7 ft 9 in

  • Track - 6 ft 3 in

  • Draw-bar pivot height - 1 ft 6 in

  • Feeding height of loading skip - 2 ft 1 in

  • Height of Discharge - 2 ft 6 in

  • Minimum turning radius - 14 ft 7 in

 

 

Barber-Greene Dryer, Model 831

Barber-Greene Dryer, Model 831

Description
  1. The drying machine is for use when drying the aggregate for bituminous mixing and is used in conjunction with a Barber-Greene Model 831 Elevator and 841 Mixer.

  2. The machine - and the power unit which is a 36 hp LeRoi gasoline engine - are mounted on a chassis provided with an axle and twin pneumatic tyred wheels at one end and two jacks at the other. The jacks support one end of the chassis during the operation of the machine and also enable it to be raised or lowered on to a. tractor or dolly for towing purposes.  The jacks swing, up under the machine when in the travelling position.

MT required for transportation -

  • Dolly and heavy tractor

This item of equipment appears to have been added to the 2nd Edition by the issue of AL4.

Engine LeRoi, Model D201P3, 4 cylinder, water cooled, petrol:  Capacity - 201 cu in:  Power - 36 BHP at 1,400 rpm (governed)
Operating Data Approximately 25 tons per hour
Data
  • Weight on trailing axle - 10,800 lb

  • Load on dolly- 4,000 lb.

Overall dimensions: -   

  • Length - 25 ft. 2 in.

  • Width - 8 ft. 1 in.

  • Height - 10 ft. 6 in.

Wheels - Dual wheels with 7.50 x 20 (8-ply) pneumatic tyres

 

Barber-Greene Dryer, Model 830

Barber-Greene Dryer, Model 830

Description
  1. This drying machine is used in conjunction with a Barber-Greene Mixer, Model 840. The machine is mounted on a chassis which is provided with an axle and single pneumatic-tyred Wheels at one end, and a towing link at the other. Folding jacklegs support the dryer in the operating position.

  2. The power unit is a Le Roi gasoline engine.

MT required for transportation -

  • not stated

This item of equipment appears to have been added to the 2nd Edition by the issue of AL24.

Engine LeRoi, Model D176P8, 4 cylinder, water cooled, petrol:  Capacity - 176 cu in:  Power - 46 BHP.
Machine Specification

Running gear - Single wheels, fitted with 10.00 x 20 in, 2-ply, heavy duty, pneumatic tyres.

Drum - 3 ft. diameter x 10 ft. long, welded 3/16 in. steel plate, with renewable lifting flights, chain-driven.  Mounted on four 8 in. dia. trunnions.  Rolled steel drum tyres.

Hopper feeder - 1 cu. yd. hopper with calibrated gate at charging end of drum.  A 10 in. maximum opening over 10 in. wide reciprocating feeder, which forms base hopper, assures an even flow of material into drum.

Transfer elevator - Enclosed, single strand, with 10 in. x 6 in. x 6¼ in. malleable iron buckets every fifth link.  Wraps around discharge end of drum for drive.  Replaceable high carbon steel liner plates in elevator boot and discharge spout.  Folds for travelling.

Exhaust fan - Clarage. A 13 in. x 13 in. x 7 ft. stack, folds for travelling.

Combustion chamber - 18 in. inside dia. x 2 ft. 6 in. long x 4 in, thick refractory lining.

Burner, blower and pump - Hauck No. 583 low pressure air atomization oil burner, capacity 6 to 33 gall. per hour.  Micro-regulating valve.  Roots-Connersville No. 615 low pressure blower driven from dryer power unit.  A 3/8 in. Viking pump, with adjustable relief valve, and piping, attached to blower, supplies fuel to burner.

Machine Accessories

Charging elevator - 14 ft. centres, open type bucket elevator, chain-driven from dryer, for charging dryer hopper, consists of single strand chain with 10 in. x 6 in. x 6¼ in. malleable iron buckets every third link.

Reciprocating feeder - 1 ft. 6 in. x 4 ft., Model 812 dual gate reciprocating feeder, sealed ball bearings, sloping plate, locking lever adjustment for each gate, chain-driven from charging elevator foot shaft, steel housing and bulkhead plate.

Loading hopper - 8 ft. 6 in. x 11 ft. 8 in. 13-ton, two-compartment, hopper mounted over No. 812 reciprocating feeder. Replaces steel housing bulkhead plate.

Discharge chute - Replaces transfer elevator. Discharge height 1 ft. 4 in. above ground line.

Dust collector (replaces exhaust stack) - Inside dia. 2 ft. 6 in., overall height mounted 19 ft. 10¼ in.  Weight approximately 900 lb.  Cyclone, single cone, No. 12 gauge plate, welded steel construction, bolted in sections for easy erection.  Frame mounted on dryer.  Dust discharges into transfer elevator, making collector and dryer a self-contained unit.  Damper control of gas-flow at dryer.  Ducts connect cyclone to drum stack and to exhaust fan.  Fan-driven from dryer power unit.

Operating Data 10 - 25 tons per hour, depending on type of aggregate, amount of moisture to be removed, etc.

Discharge height - 10 ft 1 in

Data
  • Weight - 11,600 lb

Overall dimensions: -   

  • Length - 21 ft. 0 in.

  • Width - 9 ft. 0 in.

  • Height - 14 ft. 8 in.

 

Millars' Drying and Mixing Unit, 10 cu yd (with bitumen pump and air pressure brakes) (AL75)

Millars' Drying and Mixing Unit, 10 cu yd (with bitumen pump and air pressure brakes)

Description
  1. This machine is generally similar to the later models of the plant described earlier in this section.  The chief differences are the provision of a bitumen pump and piping on the plant and the provision of a Clayton Dewandre two line air pressure brake system on the trailer chassis.  All machines off this Contract are fitted with a Ruston Type 1 VSH diesel engine.

  2. The bitumen pump is driven by a quadruple V-belt drive from the plant countershaft; the bitumen circuit is of the constant circulation type in which bitumen is circulated from an external source of supply, through the pipes to a distributor valve mounted on the plant, and then back to the source of supply.  When bitumen is required, the distributor valve is opened to deliver the bitumen into the measuring tank of the plant thus avoiding the manual filling required by earlier models.

  3. The chassis is fitted with a four-wheel braking system of the Girling type, operated by a Clayton Dewandre air pressure system and must only be towed by a vehicle fitted with a two line air pressure system.  Disconnection of the trailer air lines from the towing vehicle automatically applies the trailer brakes. Release of the trailer brake when disconnected from a towing vehicle can only be effected by releasing the pressure from the trailer air reservoir thus rendering the brakes ineffective until the plant is again connected to a towing vehicle.  A hand parking brake, operating on the rear wheels only, is provided for use when the air pressure system is inoperative.

MT required for transportation -

  • Towed by 10 ton tipper or similar

This item of equipment appears to have been added to the 2nd Edition by the issue of AL75.

Engine

Ruston, 1 VSH, Vertical diesel, four-stroke, single-cylinder:  BHP - 9 at 1,200 rpm. (governed)

Operating Data

Capacities

  • Loader skip (unmixed) - 14 cu ft

  • Mixing drum (mixed) - 10 cu. ft. or 8 cwt. whichever is the greater

Output  - Output is dependent largely on weather conditions and the specified mixing temperatures.  Average output as given by the makers for an eight hour day is as follows: -

  • Hot asphalt - 20 to 25 tons

  • Tar or bituminous macadam - 30 to 40 tons

Dimensions - In operational condition, loader skip and track fitted, draw-bar removed, tyres on ground.

  • Overall length - 'L' - 11 ft 4 in

  • Overall width - 'D' - 14 ft 0 in

  • Overall height, skip raised 'B' -  11 ft 0 in

  • Overall height, skip lowered 'A' -  10 ft 4 in

  • Loading height of skip 'C' - 1  ft 11 in

  • Discharge height 'F ' - 2 ft 8½ in

  • C/L height of bitumen feed connection 'H' - 2 ft 6 in

  • C/L height of bitumen return connection 'G' - 7 ft 6 in 

Data

Weights

  • Gross - 10,000 lb

  • Nett - 9,450 lb

Overall Dimensions - Loader skip and track removed.  Draw-bar fitted

  • Length 'M' - 15 ft. 10 in

  • Width 'E' - 9 ft. 5 in

  • Height 'A' - 10 ft. 4 in

  • Wheelbase 'K' - 7 ft 9 in

  • Track

    • Front - 6 ft 9 in

    • Rear - 7 ft 9 in

  • Draw-bar pivot height - 1 ft 6 in

  • Ground clearance, under air reservoir cock 'J' - 1 ft 0 in

  • Turning circle radius between walls   

    • Left-hand - 39 ft 0 in

    • Right-hand - 39 ft 6 in

 

 

Barber-Green Soil Preparation Unit, Model 821

Barber-Green Soil Preparation Unit, Model 821

Description
  1. The Model 821 soil preparation unit is used for preparing and proportioning clay soil aggregate in conjunction with a Model 831E elevator and 841 mixer.

  2. The machine - and the power unit which is a  36 hp LeRoi gasoline engine - are mounted on a chassis provided with an axle and twin pneumatic tyred wheels at one end and two jacks at the other.  The Jacks support one end of the chassis during the operation of the machine and also enable it to be raised or lowered on to a tractor or dolly for towing purposes. The jacks swing up under the machine when in the travelling position.

MT required for transportation -

  • Dolly and heavy tractor

This item of equipment appears to have been added to the 2nd Edition by the issue of AL4.

Engine LeRoi, Model D201P3, 4 cylinder, water cooled, petrol:  Capacity - 201 cu in:  Power - 36 BHP at 1,400 rpm (governed)
Operating Data Approximately 25 tons per hour
Data
  • Weight on trailing axle - 9,800 lb

  • Load on dolly- 5,000 lb.

Overall dimensions: -   

  • Length - 25 ft. 2 in.

  • Width - 8 ft. 1 in.

  • Height - 10 ft. 6 in.

Wheels - Dual wheels with 7.50 x 20 (8-ply) pneumatic tyres

 

Barber-Greene Bucket Elevator, Model 831E

Barber-Greene Bucket Elevator, Model 831E

Description
  1. This elevator is used to charge the aggregate hoppers on the Model 831 dryer or the 821 soil preparation unit and is chain-driven from these machines.

  2. The machine is provided with a single axle and two pneumatic-tyred wheels at one end and two jacks at the other.  The jacks support one end of the machine prior to hoisting it into the operating position.  The elevator is fitted with a sliding towing tongue by means of which it can be attached to the pintle connection at the rear of the soil preparation unit or mixer, or to the towing vehicle.  The jacks are raised when the machine is in the travelling position.

MT required for transportation -

  • towed behind Model 841 mixer or Model 831 dryer of a tractor unit

This item of equipment appears to have been added to the 2nd Edition by the issue of AL4.

Operating Data Approximately 40 tons per hour
Data
  • Weight on trailing axle - 2,900 lb

Overall dimensions: -   

  • Length - 17 ft. 0 in.

  • Width - 5 ft. 8 in.

  • Height - 5 ft. 0 in.

Wheels - Dual wheels with 7.50 x 20 (8-ply) pneumatic tyres

This item was listed in the index but no details seem to have been issued.

  1. Barber-Greene Bucket Elevator, Single bucket type

 

Dart 2,900 lb, two-wheel, dual tyre, 4½ ton, flat-bed dolly

Dart 2,900 lb, two-wheel, dual tyre, 4½ ton, flat-bed dolly

Description
  1. The dolly is used with a semi-trailer and is connected by the fifth wheel pin to form a 4-wheel trailer, thus making a suitable unit for towing.

  2. The dolly consists of a rectangular pressed steel frame of welded construction with a semi-automatic fifth wheel connector, and is mounted on trailer springs attached to the axle assembly. It is equipped with a drawbar which will fit the standard pintle hook at the rear of either the towing truck, or trailer.  When it is not in use as part of a 4-wheel trailer unit, it may be towed at the rear of a semi-trailer.

This item of equipment appears to have been added to the 2nd Edition by the issue of AL11.

Operating Data 4½ tons

When operated as part of a 4-wheel trailer unit and towed by a truck tractor, this unit will trail satisfactorily at a speed of 35 mph or 40 mph for short intervals.

Data
  • Weight on trailing axle - 2,900 lb

  • Overall length - 12 ft. 1 in.

  • Length (centre of fifth wheel to centre of lunette) - 9 ft. 1 in.

  • Overall width - 7 ft. 1 in.

  • Overall height - 4 ft. 2 in. (unloaded)

Wheels - Dual wheels with 7.50 x 20 pneumatic tyres

 

Hobbs, 2,800 lb, two-wheel dual tyre, 4½ ton, flat-bed dolly

Hobbs, 2,800 lb, two-wheel dual tyre, 4½ ton, flat-bed dolly

Description
  1. This dolly is similar to and interchangeable with the Dart Dolly (shown above), the only differences being in the weight and in small design features.

This item of equipment appears to have been added to the 2nd Edition by the issue of AL51.

Operating Data

Running gear - Dual wheels fitted with 7.50in. x 20 in. pneumatic tyres

Brakes - 16 in. dia. x 6 in. wide, operated by Westinghouse air brake chambers connected to a reserve tank on the semi-trailer

Electrical equipment - Wired for 6-volt tights and stop tight; a cable is provided for connecting the dolly to the electrical supply of the towing vehicle

Capacity - 4½ tons

Trailing speed - When operated as part of a 4-wheel trailer unit and towed by a truck tractor, this unit will trail satisfactorily at a speed of 35 mph or 40 mph for short intervals.

Data
  • Weight on trailing axle - 2,900 lb

  • Overall length - 12 ft. 1 in.

  • Length (centre of fifth wheel to centre of lunette) - 9 ft. 1 in.

  • Overall width - 7 ft. 1 in.

  • Overall height - 4 ft. 2 in. (unloaded)

Wheels - Dual wheels with 7.50 x 20 pneumatic tyres

 

 

Mitchell Portable Belt Conveyor

Mitchell Portable Belt Conveyor

Description
  1. The Mitchell portable belt conveyor is designed for handling loose materials, such as small coal and stone, sand, and gravel. The headroom enables it to be passed through low doorways, under gantries, etc., without the danger of fouling overhead wires or other obstructions and it may be used from loading points within the holds of barges, through the doors of railway wagons, in excavators, etc.

  2. The main framework, on which the belt is carried, consists of a fixed boom assembly to which a cantilever boom is attached by hinge connection.  The power unit, reduction gearing, and driving and tension drums, are mounted in the fixed frame; the hinged boom assembly is raised by a hydraulic luffing jack which is attached to both frame units.  It is possible to mount the main frame as a whole in four alternative positions relative to the axle, by means of the axle frame provided.  By selection of axle position, and adjustment of the cantilever boom, it is possible to vary the discharge height and belt angle to suit particular conditions, as shown in the diagrams below

  3. The belt is of the troughed type, 18 in, wide, and runs at a speed of approximately 200 ft. per minute.  Spring-loaded tension gear is fitted, and the belt is cleaned by scraper gear at the discharge end and on the tension drum.  The supporting idlers on the troughed side of the belt are of the 3-pulley type, and the return idlers of the single-pulley type.

  4. A Petter air-cooled gasoline engine, Type PAl, is fitted.  The reduction gearing comprises two chain roller drives, and the drive may be disengaged by a hand-operated chain type clutch.

  5. Pneumatic-tyred road wheels are fitted, and the wheels are mounted on swivelling axles which enable the machine to be man-handled to serve different discharge points.  A towing attachment is fitted at the boot of the conveyor.

  6. As a guide to capacity, the machine will handle small coal at 40/50 tons per hour, and stone or sand weighing 1 cwt. per cu. ft. at 60/80 tons per hour, depending upon the facilities available for loading.  Up to five men can load at one time.  If desired, one machine can load on to another in sequence.

The machine is provided with an adjustable axle frame allowing the conveyor to be used in any four of the positions described and illustrated in the drawing.

Diagram showing different positions of conveyor

This item of equipment was transferred to Part 7 by AL20.  This entry has been updated to AL51.

Engine Petter, Type PA1, single-cylinder, air-cooled petrol:  Capacity - 28.6 cu ft:  BHP - 4 at 1,400 rpm (governed)
Machine Specification

Conveyor       

  • Type - Rubberised canvas belt

  • Width - 18 in.

  • Length - 50 ft. (pulley centres), 51 ft. 3 in. (total    length)

  • Shaft bearings - 1-3/8 in. phosphor bronze

  • Troughing roll assemblies - 3-pulley type, 4 in. dia. with ball bearings

  • Return roll assemblies - Single pulley type, 4 in. dia. with ball bearings

  • Driving drum - 20 in. x 13½ in., steel tube type, phosphor bronze bearings.

  • Tension drum - 20 in. x 10½ in., steel tube type, phosphor bronze bearings

Reduction gearing       

  • First reduction drive - Chain 5/8 in. pitch simple chain; 102 links with 21-tooth pinion

  • Second reduction drive - Chain ¾ in. pitch simple chain; 118 links

  • Countershaft driver sprocket - 457 teeth

  • Countershaft driven sprocket - 19 teeth

  • Driving drum sprocket - 95 teeth 

Clutch

  • Make and Type - Renold chain clutch, No. 641013

Running gear

  • Wheels - Two, size 3.62 x 19 in.

  • Tyres - Pneumatic, 6-19, 6 ply rating

  • Wheel bearings - Roller

  • Towing attachment - Mild steel bracket with 1¼ in. dia. hole, fitted to lower portion of drum boot

Operating Data

Belt speed  - 200 ft. per mm. (app rox.)

Capacity - Varies according to feed, angle of operation and type of material.  Examples: - small coal, 40/50 tons per hr.; stone or sand weighing 1 cwt. per cu. ft., 60/80 tons per hr.

Operating angles and discharge heights - Can be varied by selection of alternative axle positions and adjustment of the cantilever boom (see accompanying diagrams)

Maximum towing speed 9 m.p.h.

Data

Dimensions - see diagram above.

 

Barber-Greene, transfer Conveyor, 24 in x 57 ft Model N

Barber-Greene, transfer Conveyor, 24 in x 57 ft Model N

Description
  1. This conveyor is designed for the handling of bulk aggregate and is used to elevate the material from the discharge chute of the Model 833 dryer to the hopper of the Model 848 mixer. It may also be used when unloading aggregate from railway trucks, or other vehicles, and conveying it to a stockpile.

  2. A belt cover is installed on the conveyer to retard the cooling of the aggregate when a hot mix is being used, and, in addition, to protect the belt from deterioration by the weather.

  3. The power unit is a Wisconsin 19 BHP gasoline engine.

This item of equipment appears to have been added to the 2nd Edition by the issue of AL20.

Engine

Engine - Wisconsin AM 4, 4-cylinder, air-cooled, Gasoline:  Capacity - 133 cu. in:   BHP 19 at 1,300 rpm (governed)

Operating Data

The capacity of the conveyer is up to 300 tons per hour, depending on the type of material handled, the feed, and the angle of operation.  The operating speed of the conveyer belt is 289 ft. per minute. T he maximum speed for towing the machine is 15 miles per hour

Data

Running gear - Rear wheels fitted with 6-ply, 900 x 24, pneumatic tyres.  The front of the machine is supported on a dolly provided with 6-ply, 4.00 x 12, pneumatic tyres.  Note: Some machines are provided with 48 in. x 6 in. steel wheels, in these instances there is no dolly

Conveyor belt - 4-ply, 28 oz. rubber covered. Hot material type: 24 in. x 117 ft.

Weight - 8,200 lb (empty)

Dimensions: -

  • Length - 62 ft. 8 in.

  • Width - 8 ft. 7 in.

  • Height - 25 ft. 0 in

 

 

Barber-Greene Paver and finisher, 12 ft, Model 879A

Barber-Greene Paver and finisher, 12 ft, Model 879A

Description
  1. The Barber-Greene Finisher is a self-propelled track-mounted unit for laying mixed bituminous material for road or runway construction.  It is a tamping and automatic levelling machine, capable of laying a finished surface of thicknesses varying between ¼ in. to 6 in., 8 to 12 feet wide, at speeds of 7.85 to 44.5 feet per minute, according to conditions and requirements.

  2. The average laying capacity is 100 tons per hour, depending on the type of mix and the required thickness of pavement. The mix is supplied straight into the machine from tippers, each tipper moving ahead of the paver while discharging.

MT required for transportation -

  • Excavator transporter or 20 ton trailer

This item of equipment appears to have been added to the 2nd Edition by the issue of AL30.

Engines
  • Le Roi, D210P3, 4-cylinder, water-cooled, Gasoline:  Capacity 201 cu. in or

  • Fordson, Major, 4-cylinder, water-cooled, Gasoline:  Capacity 267 cu. in or

  • Ford, V8, water-cooled, Gasoline:  Capacity 221 cu. in

Data

Running gear - Pin-jointed tracks

Weight (dry) - 10 tons 5¼ cwt

Dimensions: -

  • Length - 15 ft. 2 in.

  • Width - 10 ft. 4 in. (without extensions)

  • Height - 7 ft. 9 in

 

Blaw-Knox asphalt finisher, 100 TPH, Model PF 90

Blaw-Knox asphalt finisher, 100 TPH, Model PF 90 - from front

Blaw-Knox asphalt finisher, 100 TPH, Model PF 90 - from rear

Description
  1. The model PF90 asphalt finisher is a self propelled unit for laying mixed bituminous material for road or runway construction.  It is a tamping and automatic levelling machine capable of laying up to 100 tons per hour of both base and surface coat in various thicknesses between -¼ in. and 10 in., to widths of 8 feet to 13 feet.

  2. The plant is mounted on a six wheeled chassis with four pneumatic tyred driving wheels and two solid rubber tyred steering wheels the solid front wheels are hydraulically steered by lever control.  Hydraulically operated brakes, which operate independently on the driving wheels, can be applied to either side to assist steering within a small radius.

  3. Each side of the screed can be controlled independently so that the finished mat can be laid thicker on one side, or the centre of the screed can be raised to provide a crowned surface.  Screed and tamper extensions are provided to enable the screed width to be increased beyond the standard width.

  4. A screed heater is provided for use with materials requiring a hot screed; air is supplied to the burner by an electrically driven blower which is provided with a rheostat to control the pressure and fuel pressure is manually controlled to adjust the flame and provide the required degree of heating.

  5. Power for traction and for operating the plant is supplied by a Ford diesel engine through a single plate clutch and two-speed gearbox to a V-belt main transmission.  From the main transmission the power is transmitted to the driving wheels through a multi plate clutch, a four-speed gearbox and roller chain final drives.  The tamper and a feed conveyor with a screw feed auger are driven from the main transmission: the tamper drive is taken through a four-speed gearbox, and the conveyor and feed screw is taken through spur gears and bevel gears to two heavy duty clutches then to roller chain final drives.

  6. Road lighting equipment with a 12-volt electrical system is fitted to the machine, hydraulic brakes operating on all four driving wheels are provided, and a mechanically operated parking brake operates on all driving wheels. The control levers are duplicated to enable the machine to be driven from either side.

Stores Ref - 89D/120

MT required for transportation -

  • 20 ton drop frame trailer

This item of equipment appears to have been added to the 2nd Edition by the issue of AL92.

Engine Ford 592E, 4 cylinder, OHV, water cooled, Diesel engine:  BHP - 64 at 2,400 rpm
Machine Specification

Make and model - Blaw Knox PF-90

Type    Paver finisher

Screed  - Floating type with cut-off shoes and extension pieces for increasing width.  The height of the pivot point can be adjusted to control the mat thickness.  Centre and sides of screed can be adjusted to provide a crown or camber.

Screed heater - Electrically ignited diesel fuel or kerosine burner with variable air pressure blower.

Tamper - Power driven with extension pieces for increasing width.

Feed - Conveyor and auger iced from hopper.

Controls - Dual control levers on each side of machine. Hydraulically operated steering, screed lift, and traction wheel brakes.

Road lighting equipment - 1 Head and 2 side lights, 2 stop and rear lights; reversing light, and a number plate light.

Operating Data

Dimensions

  • Overall length - 20 ft. 2½ in

  • Overall height - 9 ft. 4 in.

  • Overall width (without screed extensions) - 8 ft. 9 in

General information

  • Output of material  - 100 tph.

  • Hopper capacity - 7 cu. yd.

  • Width of laid surface - 8 ft. to 13 ft.

  • Thickness of mat - Up to 10 in

  • Screed length - 8 ft. 0 in.

  • Screed and tamper extensions - Multiples of 6 in. and 12 in to provide up to 13 ft. maximum screed width.

  • Cut-off shoes - 3 in. to 24 in.adjustable in increments of 3 in.

  • Tamping rate - 1,100 to 1,300 blows per min

Working speeds 

Engine Two-speed gearbox Main Four-speed gearbox Speed in ft. per. mm
at 1,200 rpm at 1,800 rpm.
Low range
  • 1st gear
  • 2nd gear
  • 3rd gear
  • 4th gear
  • 4.34
  • 6.02
  • 8.62
  • 11.94
  • 6.50
  • 9.04
  • 12.93
  • 17.95
High range
  • 1st gear
  • 2nd gear
  • 3rd gear
  • 4th gear
  • 12.32
  • 17.12
  • 24.50
  • 34.01
  • 18.48
  • 25.67
  • 36.75
  • 51.01

Gradient limitation (in max. working gear pushing 16 ton vehicle) - 1 in 43 (calculated)

Data

Blaw-Knox asphalt finisher, 100 TPH, Model PF 90 - dimensions

For transportation by road or rail it is not usually necessary to strip the machine of any parts other than screed and tamper extensions, if these have been fitted; it can be loaded and unloaded under its own power.  The machine is equipped with road lighting equipment and is able to travel at 4 mph, for short journeys under its own power.

Travelling speed - 4.07 mph at 2,400 rpm.

Gradient limitation in max. travel gear 1 in 63 (calculated)

Dimensions (see outline drawing)

  • Overall width (minimum screed width) - 8 ft. 9 in.

  • Length with screed removed - 19 ft. 0 in,

  • Wheelbase - 8 ft. 11-7/8 in

  • Wheel track (measured at wheel centres)                  

    • Front steering wheels - 7 ft. 0 in

    • Front driving wheels - 6 ft. 10½ in

    • Rear driving wheels -7 ft. 4 in

  • Turning circle (diameter) - 28 ft. 0 in.

  • Ground clearance (under front frame cross member) - 6½ in

Total weight of machine and 13 ft screed - 24,530 lb.

 

  1. Johnson tamping and screed board vibrator, Model 3

  2. Holman concrete compactor, Models CC2 and CC3

  3. Climax poker vibrator, Model A70

The dates of the various Amendment Lists are shown below: -

Amendment List

Date of issue

Amendment List

Date of issue

Amendment List

Date of issue

Amendment List

Date of issue

1

 Mar 1951

26

Nov 1951

51

Aug 1952

76

 Mar 1956

2

May 1951

27

Nov 1951

52

Nov 1952

77

May 1956

3

Jul 1951

28

Nov 1951

53

Mar 1953

78

May 1956

4

Jul 1951

29

Nov 1951

54

Mar 1953

79

Jun 1956

5

Aug 1951

30

Nov 1951

55

Mar 1953

80

 Jul 1956

6

Sep 1951

31

Dec 1951

56

Apr 1953

81

Aug 1956

7

Sep 1951

32

Dec 1951

57

Apr 1953

82

Aug 1956

8

Sep 1951

33

Dec 1951

58

Jun 1953

83

Sep 1956

9

Sep 1951

34

Dec 1951

59

Jun 1953

84

Dec 1956

10

Sep 1951

35

Dec 1951

60

Jul 1953

85

Apr 1957

11

Sep 1951

36

Dec 1951

61

Sep 1953

86

Jul 1957

12

Sep 1951

37

Dec 1951

62

Sep 1953

87

Jul 1957

13

Sep 1951

38

Dec 1951

63

Feb 1954

88

Oct 1957

14

Sep 1951

39

Dec 1951

64

Mar 1954

89

May 1958

15

Sep 1951

40

Dec 1951

65

Aug 1954

90

May 1958

16

 Sep 1951

41

Dec 1951

66

Sep 1954

91

Aug 1958

17

 Sep 1951

42

Jan 1952

67

Oct 1954

92

Sep 1958

18

Oct 1951

43

Jan 1952

68

Oct 1954

93

Dec 1958

19

Oct 1951

44

Feb 1952

69

Dec 1954

94

Feb 1959

20

Oct 1951

45

Mar 1952

70

?

95

Mar 1959

21

Nov 1951

46

Apr 1952

71

?

96

Feb 1959

22

Nov 1951

47

May 1952

72

Sep 1955

97

Apr 1959

23

Nov 1951

48

Jun 1952

73

Nov 1955

98

Jul 1959

24

Nov 1951

49

Jun 1952

74

Nov 1955

99

Nov 1960

25

 Nov 1951

50

Jul 1952

75

Feb 1956

 

 

 

This page was last updated on 17/10/23

   [Top of Page]